Baerz & Co is een landelijk samenwerkingsverband van zorgvuldig geselecteerde boutique luxury makelaars. Samen vormen wij één netwerk, met één gedeeld aanbod. De woningen die u op onze website ziet, zijn afkomstig van alle aangesloten kantoren binnen Baerz & Co. Daardoor is niet ieder object rechtstreeks door ons kantoor in verkoop, maar door een gespecialiseerde collega binnen ons netwerk. Heeft u een woning gevonden die u aanspreekt en wilt u meer informatie? Dan brengen wij u graag persoonlijk in contact met de betreffende verkoopmakelaar, zodat u direct en zorgvuldig wordt begeleid.

ZOETERMEER
Bellefleurhof 12 0 ong - 2728 KH
Netherlands

Stefano B. Djoemena profile image
Stefano B. Djoemena
Real Estate Agent
€1,345,000 k.k.
Living Area
382m2
Plot Size
N/A
Bedrooms
9

Description

MULTIPLE RESIDENCES UNDER ONE ROOF. 2 LIVING ROOMS, 2 KITCHENS, 9 BEDROOMS, 3 BATHROOMS;
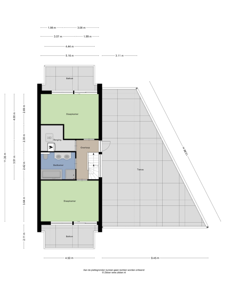
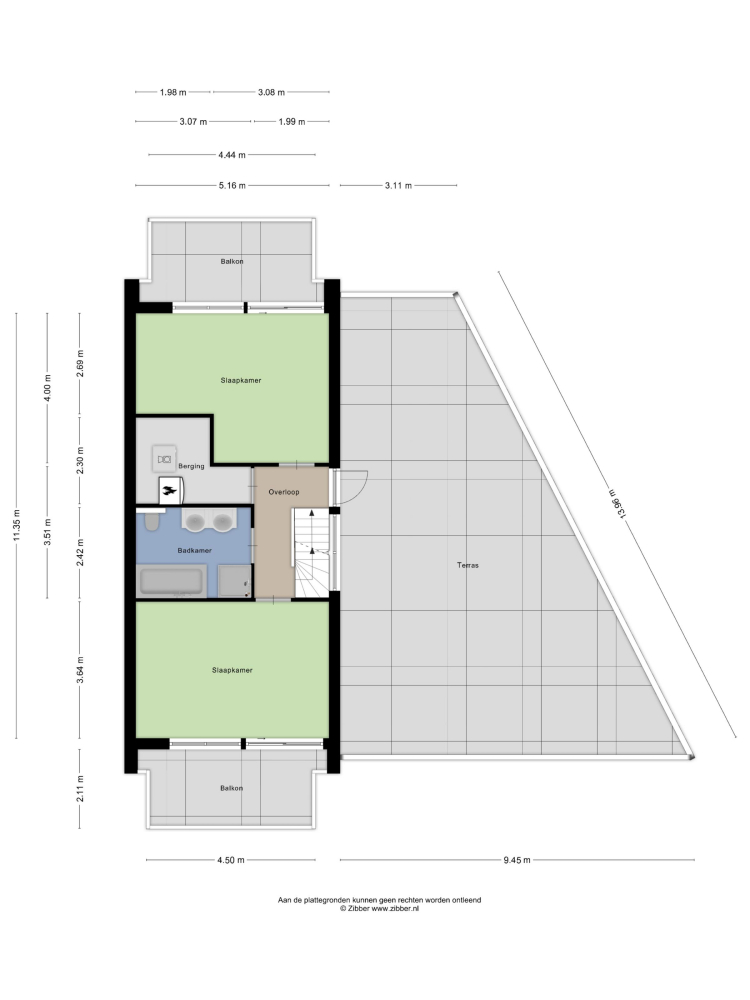
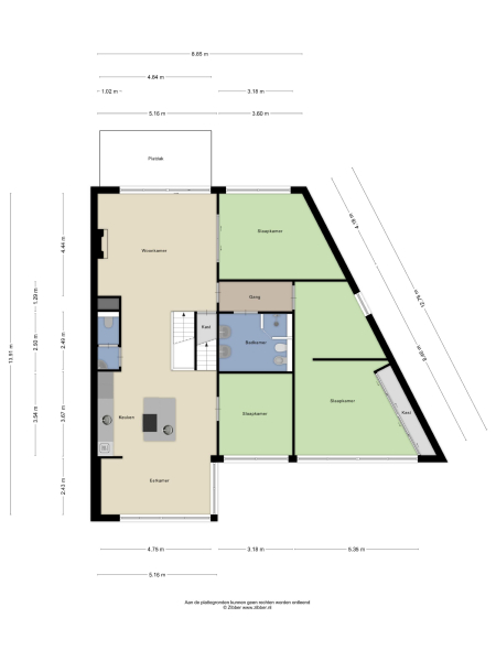
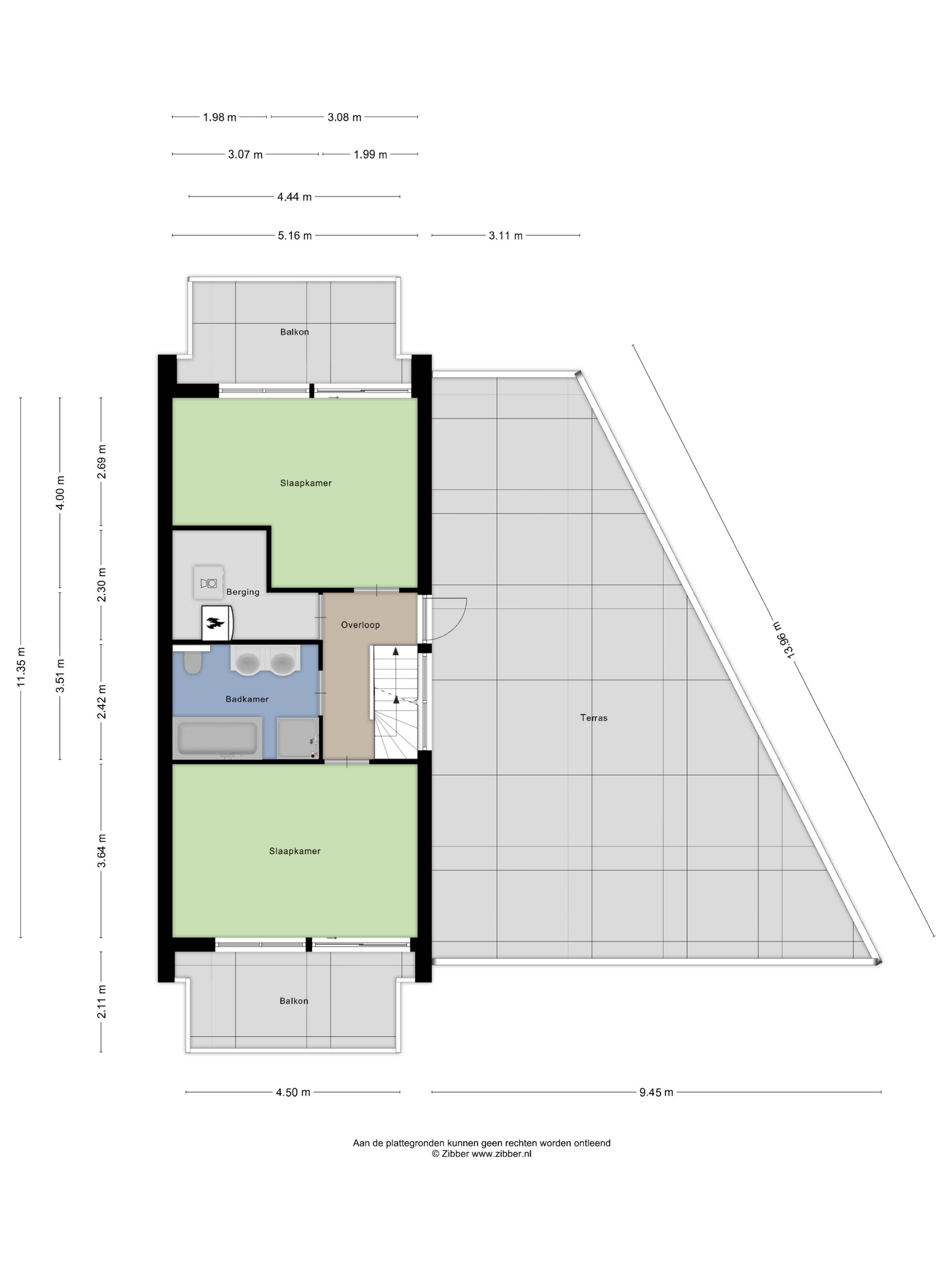
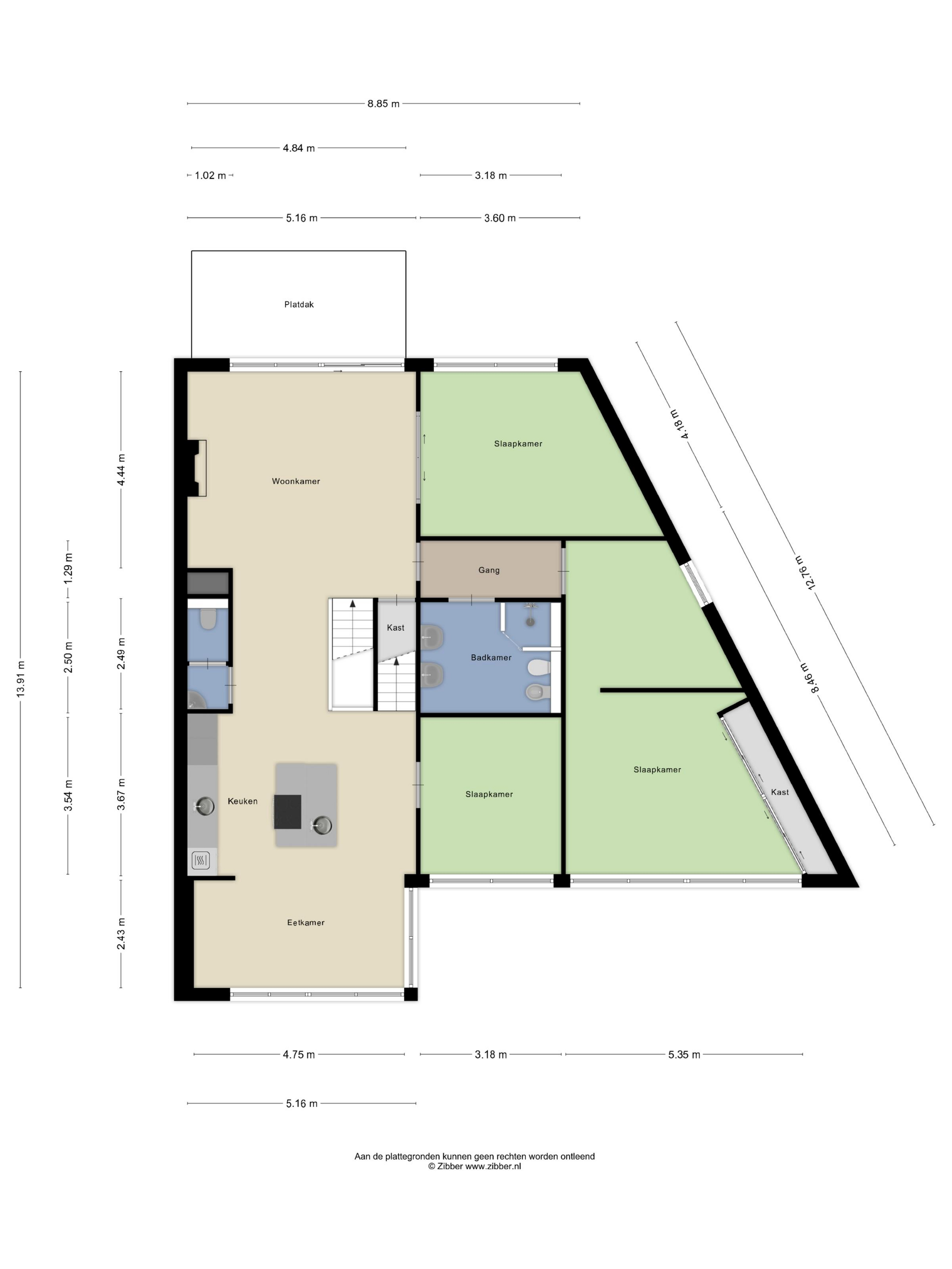
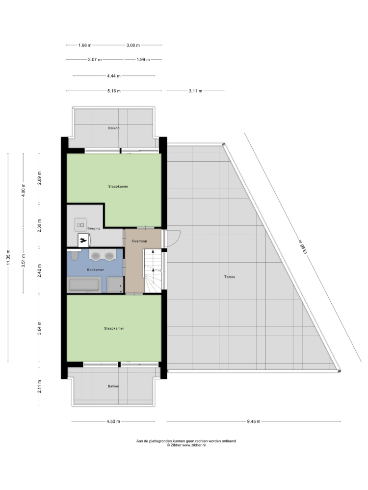
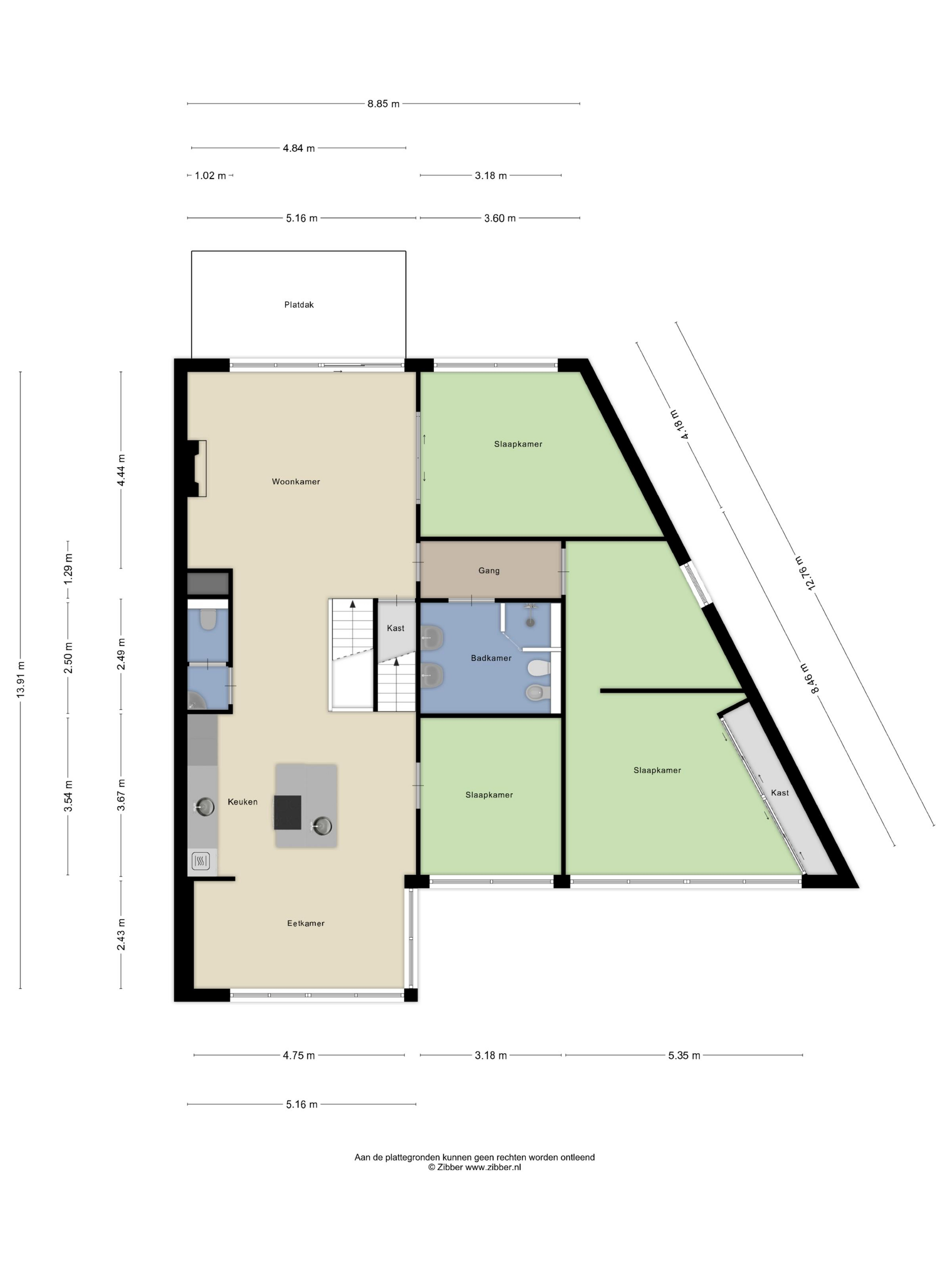
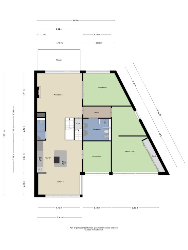
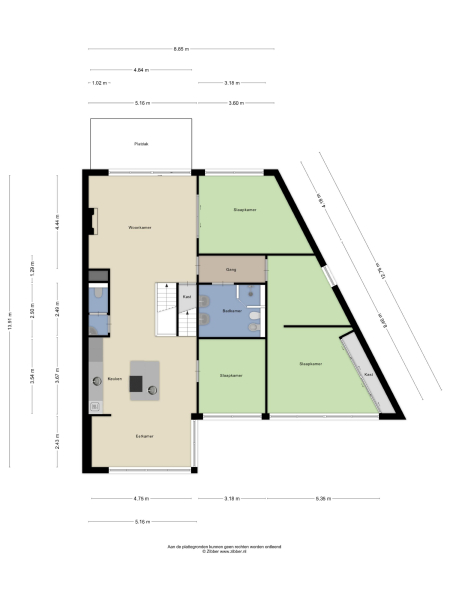
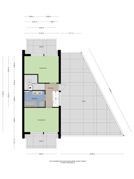
At Bellefleurhof 12 in Zoetermeer you will find a unique living combination: two complete residential units under one roof, each with its own house number. Perfect for double occupancy, informal care, kangaroo living or a combination of living and working. With no less than 382 m2 of living space, 2 living rooms, 2 kitchens, 3 bathrooms and 9 bedrooms, this is not a standard home but a place full of possibilities. Think of a multi-generational home, co-housing or spacious living with room for guests or an au pair; a home-based practice is also an option. The current layout makes it easy to live together while maintaining privacy.

SPACIOUS, BRIGHT AND LUXURIOUSLY FINISHED
The living spaces are generously proportioned and filled with natural light thanks to large windows. Each residence has its own living room with views of the greenery surrounding the house. The kitchens are practically designed and connect well with the living areas. In total there are three modern bathrooms, and thanks to the distribution over four living levels there is always a quiet place to be found. The bedrooms are spread across all floors, offering space for large beds, desks and wardrobes. The current owners have maintained the property very well; the finish is sleek and contemporary. Thanks to HR++ glazing, aluminium window frames, roof, wall and floor insulation, and 12 solar panels, this home is also energy efficient (energy label A).

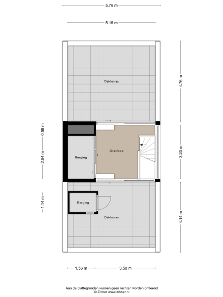
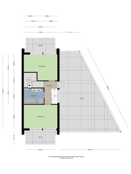
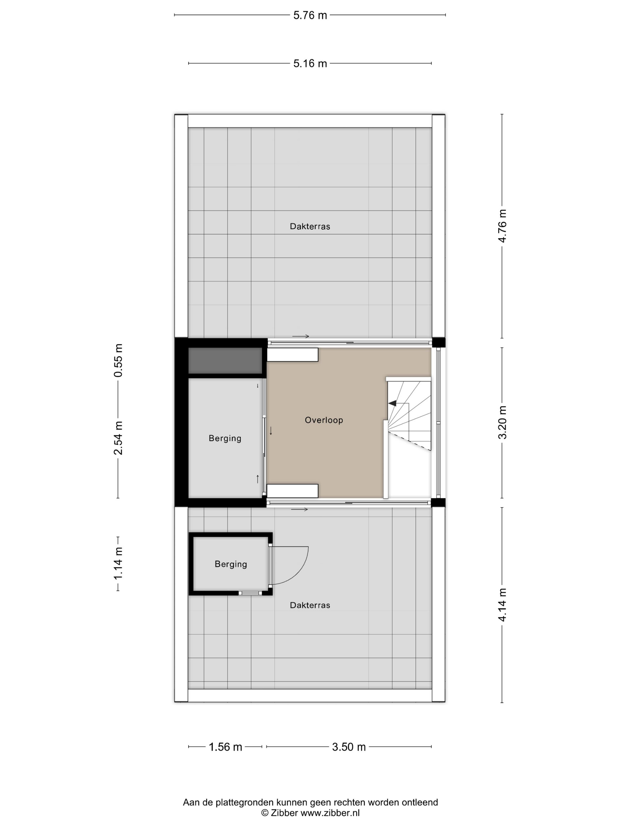
ENJOYING OUTDOOR SPACE ON EVERY LEVEL
The outdoor space is just as impressive: a total of 168 m2 of outdoor area divided over a spacious front garden, back garden, 3 balconies and 3 roof terraces. This means you always have a spot in the sun as well as privacy. There is parking space on private property under the carport and there is even a private charging station available. The location in a green, quiet neighbourhood of Zoetermeer completes the living comfort. From the living room you have an unobstructed view over a green strip and mature trees – a rare combination of space, privacy and nature within easy reach.

IDEAL FOR SHARED LIVING OR INDEPENDENT USE
This very spacious semi-detached townhouse offers exceptional space and flexibility. With a living area of no less than 382 m2, a volume of 1,262 m3 and a total outdoor space of 168 m2, this property is among the largest in Zoetermeer. The house consists of 4 full floors and features 2 living rooms, 2 kitchens, 3 bathrooms and no fewer than 9 bedrooms. In addition, you enjoy plenty of outdoor space thanks to the front and back gardens, 3 balconies and 3 roof terraces. Whether you choose double occupancy, informal care, living with a large family or a combination of living and working – this property offers all the space and layout possibilities you need. There are 2 house numbers (12A and 12B) with a formal subdivision, but fully independent use is of course also possible.

ABOUT THE NOORDHOVE DEEL II NEIGHBOURHOOD IN ZOETERMEER
Noordhove deel II is a quiet, green and popular residential area in Zoetermeer. The neighbourhood is characterised by modern architecture, wide streets, plenty of public green spaces and a child-friendly atmosphere. In the immediate vicinity you will find primary schools, sports facilities, the Noord-Aa recreational area and Noordhove shopping centre for daily groceries. With the beautiful Benthuizerplas within walking distance, relaxation in nature is always close by. Thanks to the good connections to the A12, The Hague and the centre of Zoetermeer, you live here in peace and quiet with everything within easy reach. Public transport is also well organised, with bus stops and RandstadRail nearby. An ideal location for those who want to live spaciously, quietly and yet centrally.

DETAILS
-Built in 2002
-Good state of maintenance
-Total living area 382 m2
-168 m2 total outdoor space
-1,262 m3 volume
-2 kitchens, 2 living rooms, 3 bathrooms, 9 bedrooms
-Front garden, back garden, 3 balconies, 3 roof terraces
-4 floors
-Energy label A
-Equipped with 12 solar panels
-Equipped with low-maintenance aluminium window frames with HR++ glazing
-Roof, wall and floor insulation
-Underfloor heating on the ground floor
-Carport and parking on private property
-Charging station on private property;
-Ample parking space in front of and directly near the property
-Already subdivided into apartments; Bellefleurhof 12a and 12b. Optionally for sale separately.
-A permit is available to realise an additional bedroom of 24 m2 (rear side, third floor).

DELIVERY: IN CONSULTATION

Features

Solar panels
Air conditioning
Transfer of ownership
Asking Price
€ 1.345.000 k.k.
Status
beschikbaar
Acceptance
in overleg
Construction
Kind of house
Herenhuis
Building type
halfvrijstaande woning
Construction period
2002
Energy rating
A
Roof type
plat dak
Bedrooms
9
Bathrooms
3
Surface Areas And Volume
Living Area
382 m2
Other indoor space
0 m2
Exterior space attached to the buildinge
168 m2
External storage space
9 m2
Volume in cubic meters
1262 m3
Facilities
Airconditioning
Rookkanaal
Schuifpui
Frans balkon
Glasvezel kabel
Zonnepanelen
Aan park
In woonwijk
Vrij uitzicht
Baerz & Co Property Brochure

Brochure

Videos

Floor Plans

Lunshof Makelaardij bv

Keizer Karelweg 342
1181 RJ Amstelveen

info@lunshof.nl
+31 20 345 8 345

www.lunshof.nl

Information / Viewing request

Stefano B. Djoemena profile image
Stefano B. Djoemena
Real Estate Agent

Buying a Luxury Property in Zoetermeer

Zoetermeer stands as a modern, welcoming community for those seeking sophistication, vibrant cultural amenities, and efficient connections. Residents benefit from discreet services, luxury properties, and a globally focused outlook amid the city’s tranquil yet dynamic atmosphere.