Baerz & Co is een landelijk samenwerkingsverband van zorgvuldig geselecteerde boutique luxury makelaars. Samen vormen wij één netwerk, met één gedeeld aanbod. De woningen die u op onze website ziet, zijn afkomstig van alle aangesloten kantoren binnen Baerz & Co. Daardoor is niet ieder object rechtstreeks door ons kantoor in verkoop, maar door een gespecialiseerde collega binnen ons netwerk. Heeft u een woning gevonden die u aanspreekt en wilt u meer informatie? Dan brengen wij u graag persoonlijk in contact met de betreffende verkoopmakelaar, zodat u direct en zorgvuldig wordt begeleid.

WILNIS
Waterpeil 52 - 3648 LH
Netherlands

Stefano B. Djoemena profile image
Stefano B. Djoemena
Real Estate Agent
€1,060,000 k.k.
Living Area
195m2
Plot Size
290m2
Bedrooms
4

Description

Luxury and exclusive, warm and inviting!
Discover this high-end townhouse in Wilnis' newest residential area, De Maricken, where modern elegance meets ultimate living comfort.

Welcome to this contemporary semi-detached villa built in 2021, offering a generous living area of 195 m². From the moment you step inside, the bright and open atmosphere immediately impresses, a feeling that flows throughout the home thanks to high-quality finishes, luxurious furnishings, and modern amenities. The property is generously laid out with four (easily expandable to five) spacious bedrooms, perfect for a larger family, home office, or hobby room. The home also features two luxurious bathrooms, ensuring everyone can start the day relaxed and refreshed. Both the front and rear provide maximum privacy, with no direct sightlines.

The expansive west-facing backyard is a perfect retreat for relaxation or entertaining family and friends. The stylish veranda with integrated lighting allows you to enjoy sunsets late into the evening, regardless of the weather.

Sustainability and comfort are central to this home. With 20 solar panels, a water and air heat pump, a balanced heat recovery ventilation system, energy label A, and a private charging station, you are fully prepared for the future. Practical extras include parking for two cars on your own property, a storage room, and a rear access gate, making daily life convenient. Guests can also park easily right outside. Located in De Maricken, the neighborhood is family-friendly and green, with a playground within walking distance, schools, a health center, and shops close by. Excellent connections to surrounding cities complete the picture.

This home offers space, luxury, and privacy, a place where comfort, style, and quality of life come together. Here, you can live comfortably and joyfully, and immediately feel at home. The spacious front location and secluded backyard are added bonuses in this modern residential area.

Layout of this semi-detached villa

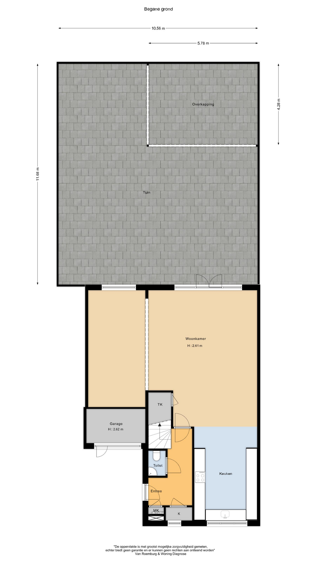
Ground floor
From the moment you approach the property, it is clear that comfort and luxury go hand in hand. The wide plot allows for effortless parking of two cars on your own property, right at the doorstep. Perfect for electric vehicles: charging is hassle-free. The covered entrance welcomes you in style, keeping you dry even during a typical Dutch rain shower.

Inside, the representative hallway immediately showcases a thoughtful layout. The wardrobe is cleverly concealed in a large built-in closet, keeping coats, shoes, and bags out of sight, giving the hall a sleek and organized look. Here, you also find a modern guest toilet with a small basin, the meter cupboard with reinforced connections, and the staircase to the first floor. The steel pivot door is a striking feature, giving a first glimpse of the luxurious finishes that continue throughout the home.

Opening this door reveals an impressively spacious and bright living room. Thanks to the extension at the rear—without a supporting column—the space feels completely open and uninterrupted. The custom-designed wall unit facing the garden perfectly combines design and functionality, with open shelves, concealed storage, a dedicated space for the TV, and a cozy bio-ethanol fireplace. All designed by Eric Kuster, whose style embodies cosmopolitan luxury, a balance of glamour and comfort, with rich materials, subtle color palettes, and layered textures, creating interiors as elegant as they are inviting, like a luxury hotel suite.

At the front of the house lies the modern U-shaped kitchen, a culinary dream for any cooking enthusiast. The kitchen includes two refrigerators, a freezer, a combination oven, an integrated Bora induction hob, a Quooker, a Le Mans corner unit, and plenty of drawers, providing abundant storage. A unique feature is the vacuum-sealing appliance integrated into the countertop (note: the steam oven will be taken by the seller). Luxury is further emphasized by the seamless tile finish: the backsplash and window sills are made of the same material as the floor, creating a beautifully harmonious look.

The living room flows directly into the sunny west-facing backyard through French doors, all fitted with screens. Inside meets outside effortlessly. The entire ground floor is finished with stylish tiles, underfloor heating, and air conditioning, ensuring comfort in every season.

First floor
The spacious landing gives access to three generous bedrooms, all equipped with air conditioning. The largest bedroom at the rear is particularly versatile, split into two sections (this extra-large room can easily be divided into two smaller bedrooms). With a dormer providing additional light and space and plenty of storage behind knee walls and sliding doors, it serves perfectly as a master bedroom, office, or a combination of both.

The bedrooms at the front and garden side are also generously sized and feature air conditioning for year-round comfort.

The bathroom feels like a luxury spa, with a large walk-in shower with glass door, a relaxing bathtub, a modern double vanity with heated and illuminated mirror, and a toilet. The high-quality tiling aligns with the style of the ground floor. The entire first floor features a PVC floor with underfloor heating, and most windows are fitted with screens.

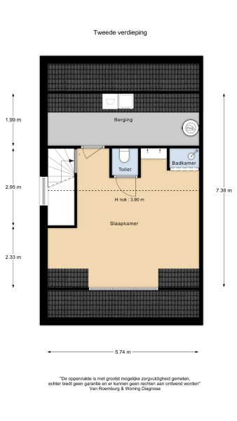
Second floor
The second floor houses the home’s ultimate feature: a luxury master suite designed for comfort and tranquility. The suite includes a dormer for extra light, a double vanity, and a steam shower cabin, creating a private in-home wellness experience. Air conditioning, screens, and underfloor heating ensure year-round comfort. There is also a separate toilet on this floor, enhancing the suite’s convenience.

From the master suite, you can access a spacious storage area spanning the full width of the house, housing the heat pump, heat recovery system, washing machine, dryer connections, and an extra boiler to ensure optimal water pressure for the steam shower.

Garden and storage
The west-facing backyard extends the living area outdoors, reflecting the same refined style as the interior. Enjoy the sun from afternoon to evening. The garden is thoughtfully designed with multiple terraces, a lawn with a built-in trampoline, and a charming veranda with lighting, a perfect spot for long summer nights. Every detail has been considered: bins are neatly hidden, there is a side gate for rear access, and both front and back gardens have automatic irrigation. At the front of the property, an additional storage room provides space for bicycles, garden tools, or equipment.

Key features
+ Turnkey and luxuriously finished, with underfloor heating and air conditioning throughout.
+ High-quality materials throughout.
+ Fantastic chef’s kitchen with premium appliances, including a vacuum-sealing unit, and abundant storage and workspace.
+ West-facing garden with veranda, built-in trampoline, multiple terraces, and full irrigation system.
+ Four large bedrooms, including a luxury master suite with steam shower, third toilet, and double vanity.
+ Maximum sustainability with heat pump, HRV system, double glazing, extra boiler, and 20 solar panels.
+ Complete privacy with no direct sightlines at the front or rear.
+ Parking both on the street and on your property, including EV charging.
+ Gross floor area of 253 m².
+ Furniture available for takeover, making moving in easy while retaining the home’s ambiance.
+ Tip: watch the video for an even better impression of this beautiful home.

Surroundings
The property sits on a wide avenue with ample street parking. The new De Maricken neighborhood is located on the edge of Wilnis, near the border with Mijdrecht. The area is characterized by green spaces and wide avenues, with homes generously positioned on their plots, giving a spacious, appealing feel. Within walking distance, you will find childcare, primary schools, and a health center. The neighborhood is cycling distance from the village centers of Mijdrecht, Vinkeveen, and Wilnis, all offering shops, restaurants, schools, and sports clubs. Ronde Venen is a sports-friendly municipality with swimming lessons, football, and hockey nearby. Secondary schools are 15 minutes by bike. Its central location makes De Maricken ideal for those working near Amsterdam, Amstelveen, or Utrecht, while enjoying the unique nature and Vinkeveense Plassen.

Driving distances
- Amsterdam or Amstelveen: 20 minutes
- Schiphol / A4: 20 minutes
- Utrecht: 30 minutes
- Vinkeveen A2 access: 10 minutes
- Woerden: 15 minutes

There is much to discover and experience in this extraordinary home. We warmly invite you for a personal viewing to fully appreciate all it has to offer. Step inside a home exuding elegance, tranquility, and refinement, ready to move in and enjoy every moment, indoors and out.

Interested in this home? Engage your own NVM buyer’s agent to represent your interests, saving time, money, and stress. You can find NVM buyer’s agents in Utrecht via Funda.

Wilnis, located between Mijdrecht and Vinkeveen, is in the heart of the Green Heart of the Netherlands, just 20 minutes from Amsterdam, Hilversum, Utrecht, and Schiphol, and 45 minutes from The Hague, Amersfoort, or Alkmaar. Wilnis offers a cozy village center, sports hall, clubs, shopping, and schools, with approximately 6,500 residents. It is part of the municipality of De Ronde Venen, a green, water-rich area offering tranquility, space, and recreational opportunities.

Features

Solar panels
Alarm system
Air conditioning
Transfer of ownership
Asking Price
€ 1.060.000 k.k.
Status
beschikbaar
Acceptance
in overleg
Construction
Kind of house
Herenhuis
Building type
twee onder een kapwoning
Construction period
2021
Energy rating
A
Roof type
zadeldak
Bedrooms
4
Bathrooms
2
Surface Areas And Volume
Living Area
195 m2
Other indoor space
6 m2
Volume in cubic meters
720 m3
Plot Size
290 m2
Facilities
Mechanische ventilatie
Alarminstallatie
Tv kabel
Airconditioning
Dakraam
Glasvezel kabel
Zonnepanelen
Balansventilatie
Aan rustige weg
In woonwijk
Vrij uitzicht
Beschutte ligging
Baerz & Co Property Brochure

Brochure

Videos

Floor Plans

Lunshof Makelaardij bv

Keizer Karelweg 342
1181 RJ Amstelveen

info@lunshof.nl
+31 20 345 8 345

www.lunshof.nl

Information / Viewing request

Stefano B. Djoemena profile image
Stefano B. Djoemena
Real Estate Agent

Buying a Luxury Property in Wilnis

Wilnis attracts an international community of discerning residents, offering refined amenities and a peaceful lifestyle. With expert advisory services, exclusive properties, and cultural richness, Wilnis promises enduring appeal for sophisticated homeowners and investors.