Ons kantoor is lid van Baerz & Co luxury homes; een Nederlands platform dat exclusieve woningmakelaars met elkaar verbindt. Voor meer informatie over ons landelijke aanbod en dienstverlening kunt u contact opnemen met ons secretariaat.

VEENENDAAL
Kerkewijk 169 - 3904 JC
Netherlands

Wistik Zonnenberg profile image
Wistik Zonnenberg
Register Makelaar Taxateur/ Eigenaar
Price on request
Living Area
169m2
Plot Size
660m2
Bedrooms
6

Description

Welcome to this surprisingly spacious and beautifully designed semi-detached house with no fewer than six bedrooms, located at Kerkewijk 169!

This attractive family home offers abundant living space, a modern finish, and a delightful garden on a generous plot of approximately 660 m².

The property is equipped with 11 solar panels (installed in March 2023) and a Nefit Trendline boiler, fitted by Zon Energie Connect Nederland. As such, the home is well-prepared for a sustainable future. The installation is already suitable for connection to a heat pump, making the property extra future-proof. In addition, air conditioning is installed on both the ground floor and first floor, ensuring a pleasant indoor climate throughout the year.

Situated on Kerkewijk—one of Veenendaal’s most beautiful streets—this characteristic avenue connects the vibrant town centre with the main access roads, offering an ideal location. Within walking and cycling distance you’ll find shops, schools, sports facilities, and cozy cafés and restaurants. At the same time, you can reach nature within minutes: the forests of the Utrechtse Heuvelrug and the surrounding meadows are just around the corner. Thanks to its central location, motorways to Utrecht, Arnhem, and Amersfoort are easily accessible.
In short: living on the Kerkewijk means enjoying both urban vibrancy and peace, with all amenities close at hand.

Layout
Ground Floor
You enter the house through the entrance and hallway, both featuring authentic terrazzo floors. From here, you access the toilet, staircase, and the spacious living room. Large windows allow plenty of natural light to flow in. The stylish gas fireplace is a true eye-catcher and adds a luxurious, cozy atmosphere.

At the rear is the generous dining area, equipped with air conditioning and direct access to the modern kitchen. The kitchen is fitted with high-quality built-in appliances, including a Miele steam oven and second oven, an induction cooktop, a Quooker tap, and a spacious Liebherr refrigerator.
Adjoining the kitchen is the utility room, offering extra storage space, connections for a washing machine and dryer, and access to the back garden.

First Floor
The first floor features a spacious landing leading to three full-sized bedrooms and a neat bathroom with a walk-in shower, floating toilet, vanity unit, and built-in cupboard. The rooms are bright, spacious, and practical in layout. Various built-in wardrobes provide additional storage. This floor also has an air conditioning unit that can cool or heat the entire level.

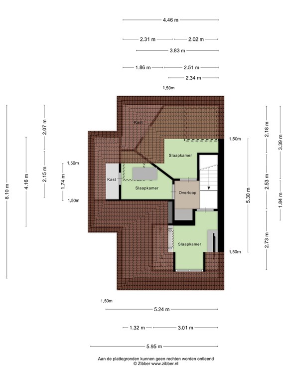
Second Floor
The second floor also offers three bedrooms, each with skylights or dormer windows, allowing ample daylight to enter. The available space has been efficiently used with clever storage solutions and a practical layout.

Outdoor Space
The back garden is beautifully maintained and generously sized—ideal for families and outdoor enthusiasts. With a depth of approximately 45 meters, it offers plenty of space to enjoy multiple seating areas, both in the sun and in the shade. The layout is elegant and functional, with artificial grass and colorful flowerbeds providing a low-maintenance yet charming atmosphere.

Directly adjacent to the house is a cozy veranda, perfect for long summer evenings, complete with a dining area and outdoor kitchen. Thanks to its southeast orientation, you can enjoy plenty of sunshine. The garden is accessible from the side of the house. At the rear, there is a large additional storage shed, and next to the house you’ll find another attached shed—ideal for storing bicycles, gardening tools, or as a hobby space.
Here, you can enjoy comfort, peace, and privacy all year round!

History
Kerkewijk 169 is a historic gem in Veenendaal. Built during the interwar period, the house reflects the reconstruction spirit of that era. Its modest architecture and the Ora et Labora (“Pray and Work”) relief on the façade symbolize the Christian work ethic that was deeply rooted in the local community. Recognized as a municipal monument since 2010, the property stands as a tangible reminder of Veenendaal’s rich history.

Kerkewijk evolved from a sandy path into Veenendaal’s main thoroughfare. In the 1920s, craftsmen, teachers, and shopkeepers settled here. From Kerkewijk 169, one could witness a society in transition—from peat extraction to textile industry, from religious segregation to modernization.

The house is a beautiful example of an interwar family home with influences of the Amsterdam School. The Ora et Labora inscription makes it a unique cultural landmark. Carefully restored in the 1980s, it has remained a symbol of unity, hard work, and faith through the years.

General Information

- Type of property: Semi-detached house
- Year built: 1926
- Number of rooms: 7
- Number of bedrooms: 6
- Number of bathrooms: 1
- Parking: Private driveway (3 cars)
- Additional features: Dormer / storage / shed
- Garden orientation: Southeast
- Garden access: Via side path

Technical Information
- Hot water system: Nefit Trendline (Zon Energie Connect Nederland, 2024) – heat pump ready
-Solar panels: 11 (installed 2023)
- Gas fireplace
- Features: Air conditioning / exterior sunshades / cellar
- Insulation: Walls, roof, and floor
- Double glazing: HR glass (except bedroom windows)
- TV cable
- Window frames: Wood

For more information about this property, please contact our office in Veenendaal.

You are most welcome! The best way to experience this beautiful home is, of course, by visiting it in person. We always schedule viewings in consultation with both the seller and the buyer, taking ample time so that you can explore and experience the property at your leisure.

Note: Every effort has been made to compile this information with the utmost care. However, no rights can be derived from possible inaccuracies or omissions in the details or drawings provided.

Special Features

Solar panels
Garage

Features

Transfer of ownership
Price on application
Status
Available
Acceptance
In Concert
Reference
08089
Construction
Kind of house
Single Family House
Building type
Semi Detached House One Roof
Construction period
1926
Energy rating
C
Roof type
front gable
Bedrooms
6
Bathrooms
1
Surface Areas And Volume
Living Area
169 m2
Other indoor space
9 m2
Exterior space attached to the buildinge
29 m2
External storage space
42 m2
Volume in cubic meters
629 m3
Plot Size
660 m2
Facilities
Airco
Cable Tv
Garage
Garden
Internetconnection
Outdoorawnings
Phoneline
Skylight
Solarpanels
Storageroom
Ventilation
Baerz & Co Property Brochure

Brochure

Videos

Floor Plans

Zonnenberg Makelaardij

Kerkewijk 108
3904 JG Veenendaal

info@zonnenbergmakelaardij.nl
+31 318 559600

www.zonnenbergmakelaardij.nl

Information / Viewing request

Wistik Zonnenberg profile image
Wistik Zonnenberg
Register Makelaar Taxateur/ Eigenaar