Baerz & Co is een landelijk samenwerkingsverband van zorgvuldig geselecteerde boutique luxury makelaars. Samen vormen wij één netwerk, met één gedeeld aanbod. De woningen die u op onze website ziet, zijn afkomstig van alle aangesloten kantoren binnen Baerz & Co. Daardoor is niet ieder object rechtstreeks door ons kantoor in verkoop, maar door een gespecialiseerde collega binnen ons netwerk. Heeft u een woning gevonden die u aanspreekt en wilt u meer informatie? Dan brengen wij u graag persoonlijk in contact met de betreffende verkoopmakelaar, zodat u direct en zorgvuldig wordt begeleid.

STAVOREN
Koeweg 42 - 8715 EN
Netherlands

Stefano B. Djoemena profile image
Stefano B. Djoemena
Real Estate Agent
€875,000 k.k.
Living Area
245m2
Plot Size
3265m2
Bedrooms
5

Description

Panoramic views, IJsselmeer, privacy and space, guesthouse and double garage!

In a prime location near the IJsselmeer, adjacent to a marina with direct access to all waterways in Friesland, this villa was completely renovated in 2004 and is situated on a spacious, fenced plot with full privacy and stunning Frisian panoramas. The tranquility, greenery, water, ever-changing skies, and sense of freedom are the defining features of this home. This well-insulated villa of 245m² is designed for lifelong living, featuring a spacious living area, four bedrooms, two bathrooms, a luxurious kitchen with utility room, and a beautiful veranda with scenic views. The double garage with an upper floor offers an abundance of space and possibilities. The fully insulated home office, studio, or guesthouse with breathtaking views of nature serves as a true source of inspiration. The architecturally designed garden, maintained with a robotic lawn mower, is easy to care for and playfully arranged with various fruit trees, hedges, and reed-lined waterways. The stylishly paved driveway and entrance gate highlight the transition to the lush green garden that remains vibrant year-round.

LAYOUT

GROUND FLOOR
Upon entering, the sense of space in the hallway is immediately noticeable. The hallway provides access to the guest toilet, utility room, meter cupboard, and staircase.
The living room is bathed in natural light due to the large windows and mezzanine, with each window offering views focused on the surrounding nature. The breathtaking panoramas never cease to amaze. The living room has various cozy corners, including a seating area around the wood-burning stove, an entertainment nook, and a dining area. A beautiful warm wooden floor with warm air heating runs throughout, and the French doors open directly onto the inviting veranda and terrace, which ensure complete privacy.
With a spacious master bedroom on the ground floor featuring an ensuite bathroom with underfloor heating and a walk-in closet, the house is designed for lifelong living.
The semi-open kitchen is equipped with built-in appliances and also has a door leading to the garden. It features underfloor heating and ample space for a dining area. Additionally, the cozy adjoining living space next to the kitchen provides an excellent spot for a large dining table.

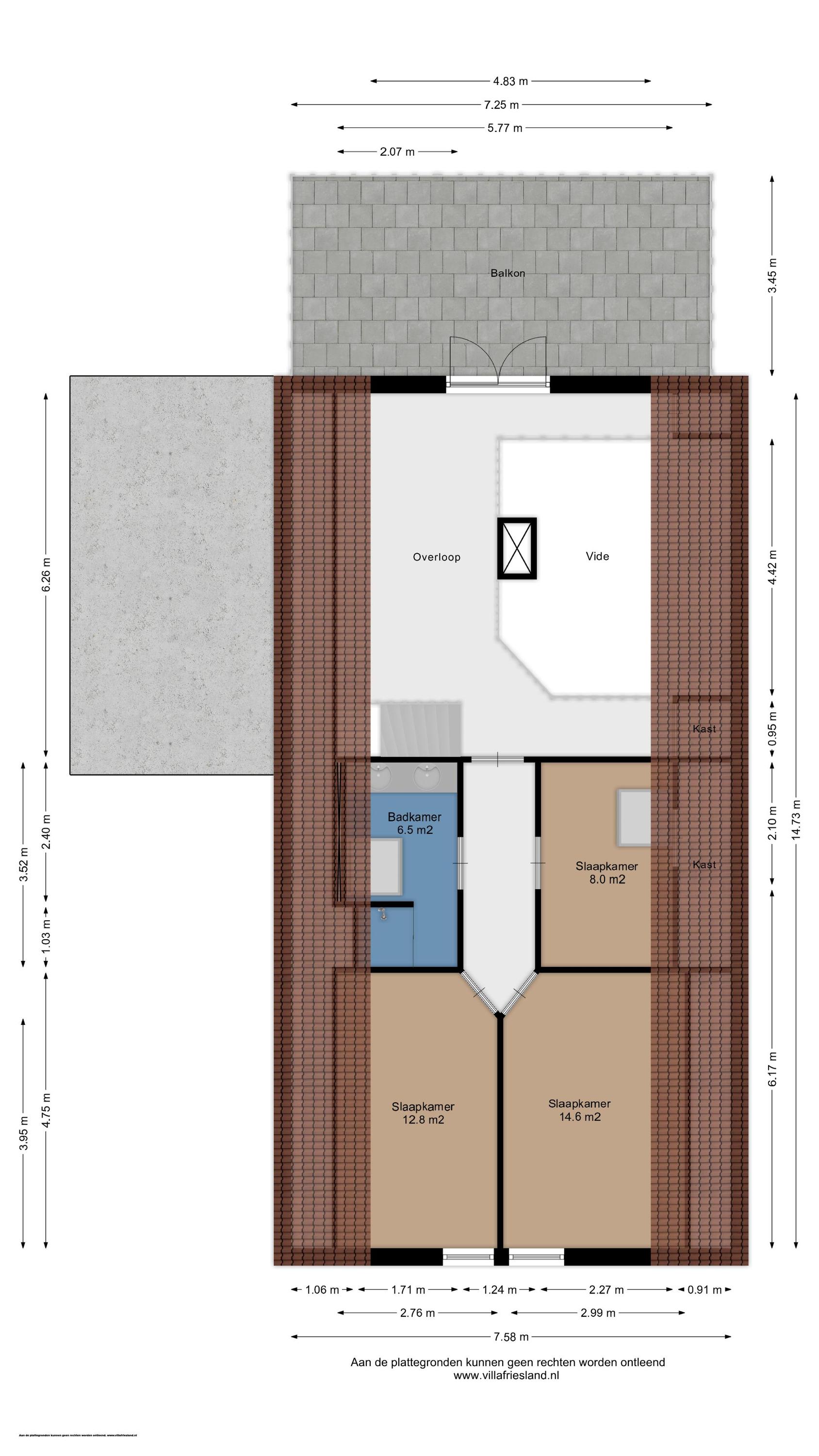
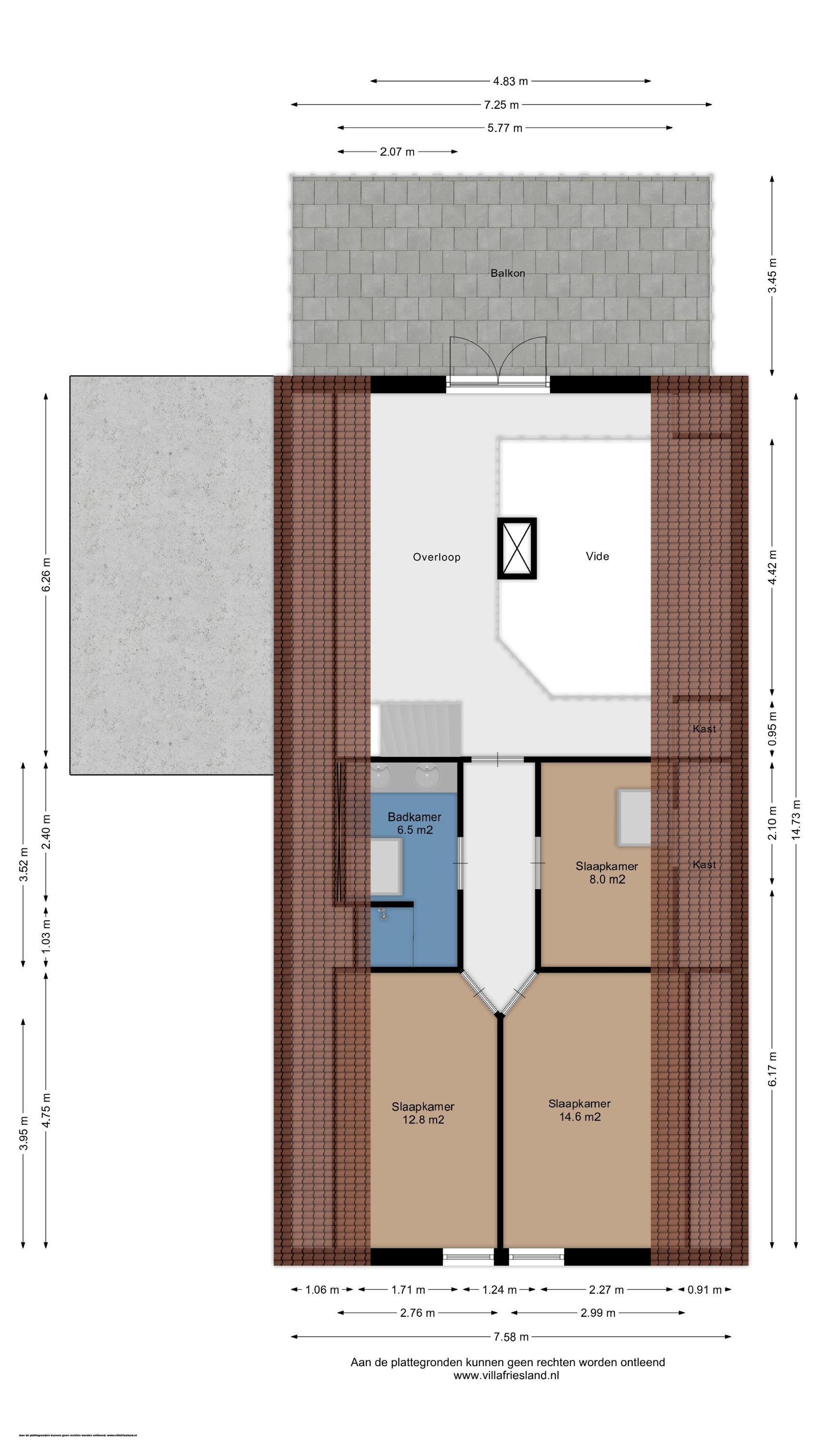
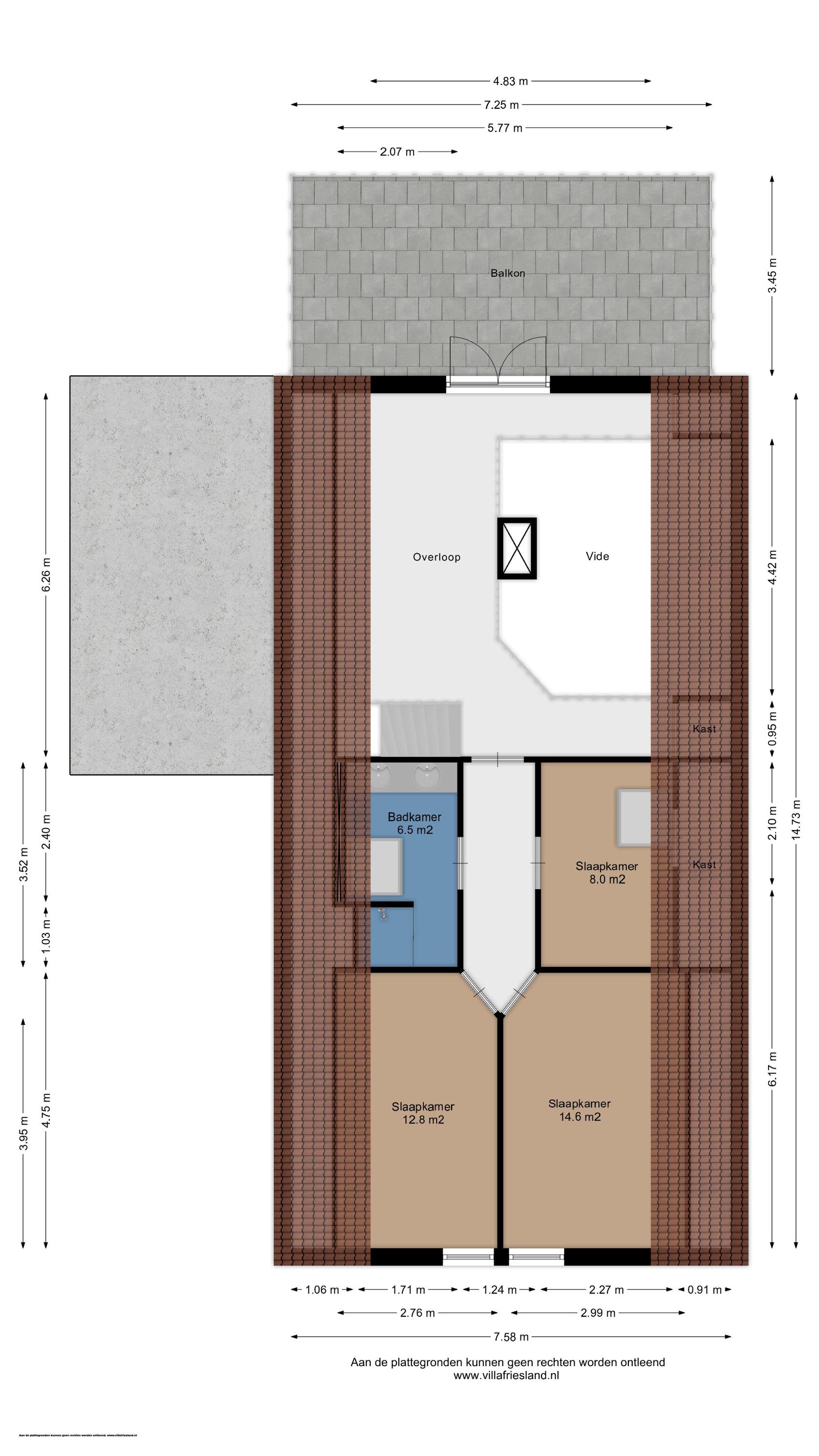
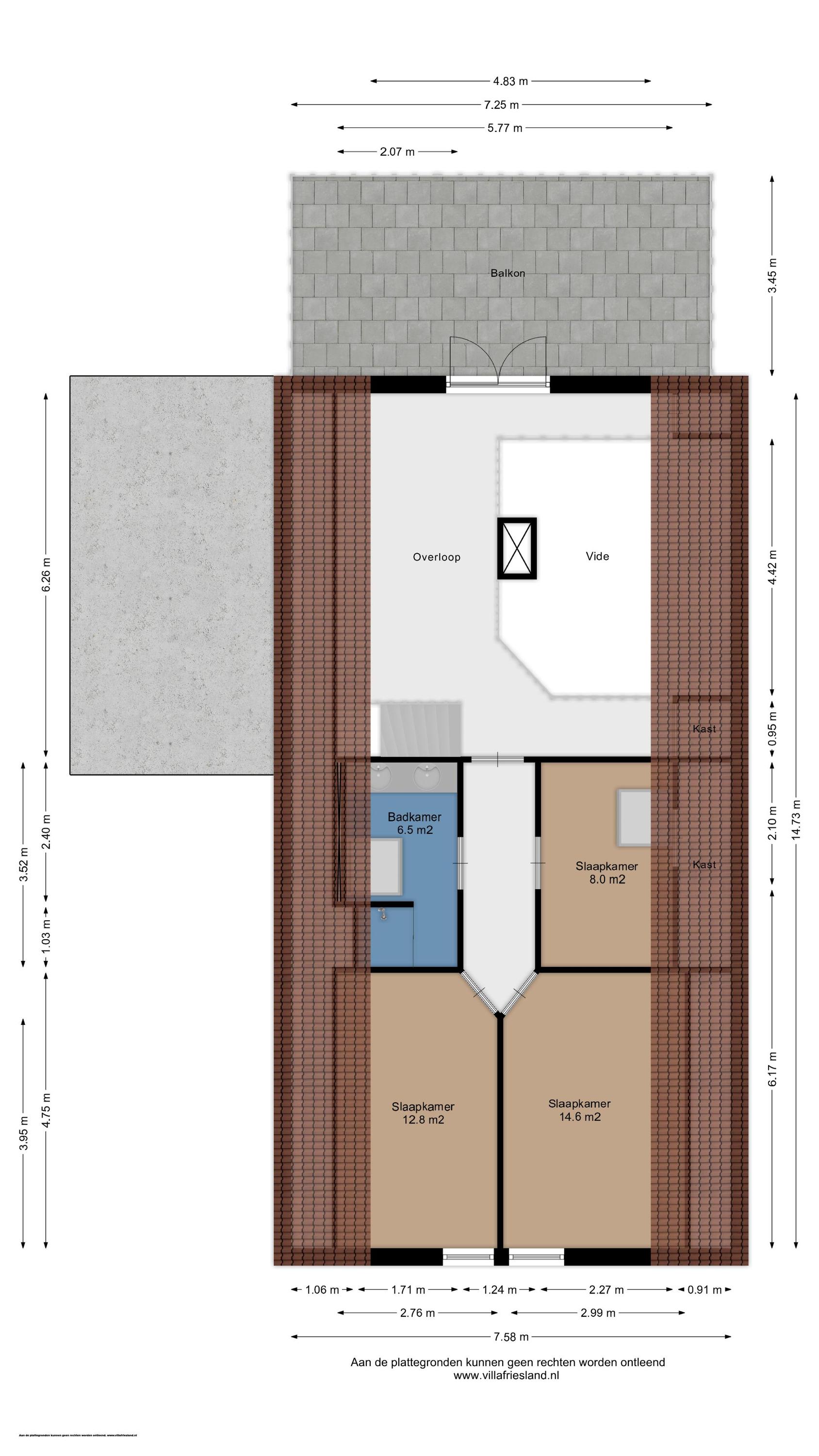
FIRST FLOOR
The mezzanine landing overlooks the living room and has double doors leading to a spacious south-facing sun terrace. This is a perfect place to experience the most beautiful sunrises and sunsets. The privacy here is complete due to the natural screening of the garden. The mezzanine area offers ample space for a cozy play area, workspace, or home library.

A door separates the landing from the bedrooms and bathroom. There are three generously sized bedrooms on this floor and a second spacious bathroom with underfloor heating, a double sink vanity, a walk-in shower, and a toilet. There is ample built-in storage in all rooms and along the sloped ceilings of the landing. Heating is provided through a warm air system.

GUESTHOUSE/OFFICE/STUDIO
A recently built fully insulated guesthouse, studio, or home office is located in the garden. It includes a kitchenette and bathroom, making it suitable for multiple uses. The large southwest-facing windows offer inspiring panoramic views of nature toward the IJsselmeer, with its ever-changing Frisian skies.

GARAGE
The double garage is equipped with a pedestrian door and two electric overhead doors. This spacious building includes a workshop with a workbench, electricity, and running water. Heating is possible as radiators are already installed.

A fixed staircase leads to the upper floor, which has full standing height and ample storage space. The property also offers enough parking for approximately nine cars.

GARDEN
The architecturally designed garden, maintained by a robotic lawn mower, is easy to care for and features various fruit trees, hedges, and reed-lined waterways. The stylishly paved driveway and entrance gate mark the transition to the lush green surroundings.
Both the main house and the guesthouse have sun-facing terraces, allowing residents to enjoy stunning views of the Frisian landscape and witness spectacular sunsets well into the evening.

SPECIAL FEATURES
- Spacious plot near a marina and the IJsselmeer
- Four large bedrooms and two bathrooms
- Durable UPVC window frames with insect screens
- Multifunctional guesthouse, studio, or home office with kitchenette and bathroom
- Double garage with workshop and upper floor
- High-speed fiber optic internet (320 Mbps) in both the house and guesthouse
- Wood-burning stove
- Multiple mooring options nearby
- Direct waterway connections to all Frisian lakes and historic Elfsteden towns

STAVOREN
Stavoren is a beautiful historic town and part of the famous Elfstedentocht route, located on the IJsselmeer. It offers a range of amenities, including a large supermarket, various shops, marinas, restaurants, a primary school, childcare facilities, watersports companies, and sports clubs.
The area has several swimming beaches along the IJsselmeer and borders the rolling woodlands of Gaasterland, which features an extensive network of walking and cycling trails. The combination of water, forests, and beaches creates a truly unique living experience.
Stavoren hosts various events and activities throughout the year. More information can be found at www.stavoren.nl.
Quick access to Balk, Lemmer, and the A6 towards Amsterdam or the Afsluitdijk towards North Holland. Direct train connection to Sneek and Leeuwarden. Seasonal ferry service to Enkhuizen.

Features

Transfer of ownership
Asking Price
€ 875.000 k.k.
Status
verkocht onder voorbehoud
Acceptance
in overleg
Construction
Kind of house
Villa
Building type
vrijstaande woning
Construction period
1978
Energy rating
C
Roof type
zadeldak
Bedrooms
5
Bathrooms
3
Surface Areas And Volume
Living Area
245 m2
Other indoor space
0 m2
Exterior space attached to the buildinge
66 m2
External storage space
73 m2
Volume in cubic meters
1011 m3
Plot Size
3265 m2
Facilities
Tv kabel
Rookkanaal
Dakraam
Glasvezel kabel
Natuurlijke ventilatie
Aan water
Aan rustige weg
Vrij uitzicht
Beschutte ligging
Buiten bebouwde kom
Aan vaarwater
In bosrijke omgeving
Landelijk gelegen
Baerz & Co Property Brochure

Brochure

Videos

Floor Plans

Lunshof Makelaardij bv

Keizer Karelweg 342
1181 RJ Amstelveen

info@lunshof.nl
+31 20 345 8 345

www.lunshof.nl

Information / Viewing request

Stefano B. Djoemena profile image
Stefano B. Djoemena
Real Estate Agent

Buying a Luxury Property in Stavoren

Stavoren blends rich maritime heritage with modern comfort, attracting those seeking privacy, culture, and refined amenities. The lifestyle, property options, and community atmosphere appeal to international buyers and families valuing tranquility and authentic Dutch living.