Baerz & Co is een landelijk samenwerkingsverband van zorgvuldig geselecteerde boutique luxury makelaars. Samen vormen wij één netwerk, met één gedeeld aanbod. De woningen die u op onze website ziet, zijn afkomstig van alle aangesloten kantoren binnen Baerz & Co. Daardoor is niet ieder object rechtstreeks door ons kantoor in verkoop, maar door een gespecialiseerde collega binnen ons netwerk. Heeft u een woning gevonden die u aanspreekt en wilt u meer informatie? Dan brengen wij u graag persoonlijk in contact met de betreffende verkoopmakelaar, zodat u direct en zorgvuldig wordt begeleid.

LOOSDRECHT
Nieuw-loosdrechtsedijk 60 - 1231 KZ
Netherlands

Stefano B. Djoemena profile image
Stefano B. Djoemena
Real Estate Agent
€895,000 k.k.
Living Area
138m2
Plot Size
559m2
Bedrooms
5

Description

Vrijstaand en karakteristiek wonen in een rustige, groene omgeving, terwijl alle voorzieningen van Nieuw-Loosdrecht op zicht op steenworp afstand bevinden!
De woning is gelegen op een riant en zonnig perceel met plek voor het parkeren van meerdere auto's en heeft 5 (slaap)kamers waarvan 2 zich bevinden op de begane grond.

Op korte afstand bevinden zich diverse basisscholen, sportvelden en het winkelcentrum van Nieuw-Loosdrecht met o.a. een Jumbo, Hema en Kruidvat. Binnen een paar minuten fietst/wandelt u naar het fraaie Landgoed Zonnestraal, de Hoorneboegse heide en bossen. Daarnaast bieden ook de Loosdrechtse Plassen en het omliggende natuurschoon u uitgebreide mogelijkheden om te sporten en recreëren. Voor meer stadse faciliteiten zoals winkels, (internationale) scholen en een NS station kunt u terecht in Hilversum welke zich op nog geen 10 autominuten van de woning bevinden. Grote steden als Utrecht en Amsterdam zijn binnen ca. 30 autominuten bereikbaar.

Indeling
Begane grond: Bij binnenkomst word je verwelkomd in een ruime hal met garderobe en een toilet met fontein. De royale woonkamer, voorzien van een sfeervolle houtkachel, sluit aan op een lichte open keuken. De gezellige zitkamer heeft openslaande deuren naar een terras, terwijl de aparte werkkamer eveneens via openslaande deuren toegang biedt tot de tuin. Aan de voorzijde van de woning bevindt zich een aparte werk- of televisiekamer.

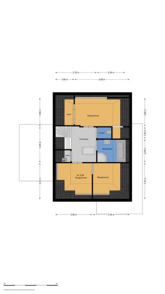
Eerste verdieping: Via een fraaie bordestrap bereik je de overloop. Aan de voorzijde bevinden zich twee slaapkamers met twee dakkapellen en een vaste kast. De slaapkamer aan de achterzijde is eveneens ruim en beschikt over een dakkapel en vaste kastruimte. De moderne badkamer is voorzien van een ligbad, een aparte douche en een wastafel. Een apart toilet completeert deze verdieping.

Tweede verdieping: de vliering is voorzien van dakramen en een nette laminaat vloer. Ideaal voor opslag. Tuin en schuur: De rondom gelegen tuin biedt volop privacy en beschikt over diverse terrassen, overkapping, een oprit en een ruime schuur van 14 m². men en een nette laminaat vloer. Ideaal voor opslag.

Tuin en schuur: De rondom gelegen tuin biedt volop privacy en beschikt over diverse terrassen, overkapping, een oprit en een ruime schuur van 14 m².

Bijzonderheden:
- Vrijstaand, goed onderhouden woonhuis in een landelijke omgeving;
- Compleet gerenoveerd (met nieuwe keuken);
- Zonnig perceel met veel privacy;
- Licht en sfeervol dankzij de vele raampartijen;
- Energielabel D geldig t/m 4 december 2034 ;
- Volledig voorzien van dubbel glas;
- Geïsoleerd pannendak, vernieuwd tijdens de renovatie;
- Voorzien van 2 airco's;
- Bouwjaar: 1930; - Inhoud: 514 m³;
- Woonoppervlakte 138 m² NEN gemeten;
- Perceeloppervlakte: 559 m²;
- Oplevering in overleg.

Kortom, een uniek, stijlvol en ruim woonhuis waar je kunt genieten van rust, ruimte en een prachtige omgeving!

Features

Solar panels
Air conditioning
Transfer of ownership
Asking Price
€ 895.000 k.k.
Status
verkocht onder voorbehoud
Acceptance
in overleg
Construction
Kind of house
Villa
Building type
vrijstaande woning
Construction period
1930
Energy rating
D
Roof type
samengesteld dak
Bedrooms
5
Bathrooms
1
Surface Areas And Volume
Living Area
138 m2
Other indoor space
5 m2
External storage space
14 m2
Volume in cubic meters
527 m3
Plot Size
559 m2
Facilities
Mechanische ventilatie
Airconditioning
Rookkanaal
Dakraam
Glasvezel kabel
Zonnepanelen
Natuurlijke ventilatie
Baerz & Co Property Brochure

Brochure

Videos

Floor Plans

Lunshof Makelaardij bv

Keizer Karelweg 342
1181 RJ Amstelveen

info@lunshof.nl
+31 20 345 8 345

www.lunshof.nl

Information / Viewing request

Stefano B. Djoemena profile image
Stefano B. Djoemena
Real Estate Agent

Buying a Luxury Property in Loosdrecht

Loosdrecht offers a rare blend of lakeside tranquility, privileged community, and refined amenities. The area appeals to those seeking international connections, discreet service, and a sophisticated, nature-inspired lifestyle.