Baerz & Co is een landelijk samenwerkingsverband van zorgvuldig geselecteerde boutique luxury makelaars. Samen vormen wij één netwerk, met één gedeeld aanbod. De woningen die u op onze website ziet, zijn afkomstig van alle aangesloten kantoren binnen Baerz & Co. Daardoor is niet ieder object rechtstreeks door ons kantoor in verkoop, maar door een gespecialiseerde collega binnen ons netwerk. Heeft u een woning gevonden die u aanspreekt en wilt u meer informatie? Dan brengen wij u graag persoonlijk in contact met de betreffende verkoopmakelaar, zodat u direct en zorgvuldig wordt begeleid.

LOCHEM
Marinus Naefflaan 7 - 7241 GC
Netherlands

€1,245,000
Living Area
215m2
Plot Size
1755m2
Bedrooms
4

Description

A Classic Beauty with a Contemporary Heart – A Wonderful Family Home in the Beloved Berkeloord District

In the highly sought-after Berkeloord area, close to the Berkel river and within walking distance of the Hertenkamp, the Enk and the Lochemse Berg, you will find this impressive villa. Built in 1947, the house offers a generous living area of 215 m² and is set on a spacious plot of 1,755 m². The white façades and red tiled roof give the property a timeless, classic appearance.

In recent years, the house has been transformed into a luxurious villa that fully meets modern living standards and comfort. Sustainability has also been a key focus: a new insulated roof was installed, floor insulation added and partial underfloor heating applied. New aluminium window frames with HR++ glazing have been fitted throughout, without exception, and a rainwater system has been installed for flushing toilets and supplying the washing machine.

The garden is a true haven. Thanks to its sheltered position and mature privet hedges, privacy is abundant. The garden design exudes tranquillity, with lawns, shrubs and two terraces (one directly adjoining the house, finished with Schellevis tiles) alternating harmoniously. Several seating areas invite you to enjoy the sun and greenery throughout the day.
Not only is magnificent nature literally at your doorstep, but the lively town centre is also close by. A quick visit to the market, a restaurant or the theatre is easily within reach.

Living in Berkeloord
The Berkeloord villa district was developed in 1907 in the English landscape style, commissioned by prominent Lochem resident Marinus Naeff, after whom the avenue is named. It was a period of great innovation, focused on elevating the city of Lochem—and it succeeded remarkably well. The street plan contains no straight roads; instead, the avenues meander playfully, lined with stately old beeches and oaks.

The atmosphere is defined by wide avenues, spacious plots and distinctive monumental villas, each designed by renowned architects of the time. It is therefore no surprise that the area is designated as a protected townscape. The monumental character does not hinder renewal, resulting in a beautiful blend of old and new. Berkeloord has long been a cherished neighbourhood, known not only for its stunning homes but also for the strong sense of community. Social gatherings, barbecues and concerts are regularly organised here.

Ground Floor
The main entrance is bright and airy, featuring a beautiful natural stone tiled floor. Immediately to the right is the elegant staircase to the upper floors, the guest toilet with washbasin, and access to the utility room with open shelving and connections for the washing machine and dryer. From the central hallway there is access to the living room and a generous study or guest room of approximately 20 m², complete with its own pantry, built-in cupboards and a lovely view of the garden. Originally designed as a large bedroom and fitted with connections for a second bathroom, this space offers great flexibility and numerous layout possibilities to suit different living requirements.

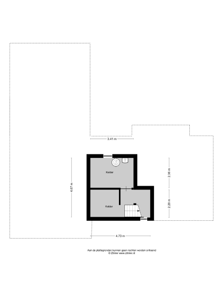
From the hallway you also have access to the cellar, which houses the rainwater management system (the garden contains a 5,000-litre rainwater tank), the central heating boiler, as well as space for food storage and a wine cellar.

The spacious living room is a fine example of contemporary design framed by original style elements. The interior is finished in a serene colour palette, with shades of grey, white and blue creating a warm ambience. The windows feature deep-set flower sills, and the floor is laid with solid oak parquet. Large windows provide plenty of natural light, and at the heart of the room is a charming fireplace. This is a warm and inviting space where the whole family will feel at home. Adjacent is a study, which also works perfectly as a TV or lounge room, featuring a deep-set window and built-in cupboards.

The sunny kitchen-diner (by Hans Croes Keukens en Interieurwerken) is located in the recent extension, designed by architect Ed Bergers (BVAB Architecten). Sleek, contemporary and filled with natural light, the kitchen features classic natural stone floor tiles with underfloor heating, creating a chic contrast with the oak cabinetry and light-coloured walls. The kitchen includes a central island with an anthracite composite worktop, a boiling-water tap, dishwasher and ample storage. Two bar stools make it an inviting place for a drink while cooking. The appliance wall contains a steam-assisted oven and combi microwave (both Miele), a large fridge and freezer, along with extensive cupboard space. Behind the kitchen is the second entrance, the so-called “back entrance”, with a hallway and four tall built-in cupboards.

Upper Floors
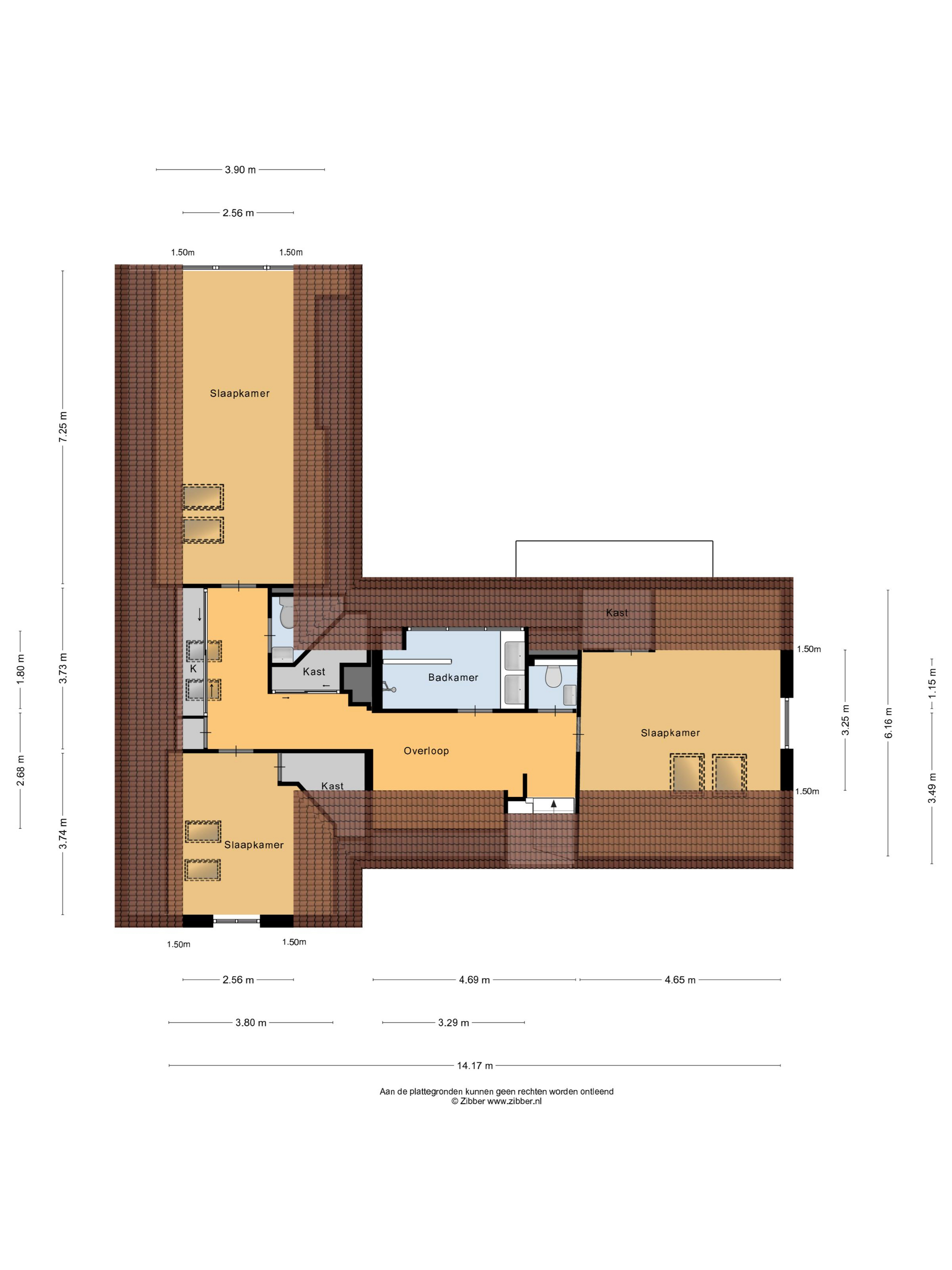
The same light and fresh design style continues upstairs. The staircase leads to a spacious landing with three large bedrooms, each fitted with a wood-look PVC floor, two separate toilets and a bathroom with a generous walk-in shower and double washbasin.

The landing offers ample storage space behind the knee walls as well as cleverly integrated built-in cupboards. The bedrooms also feature built-in storage. The main bedroom boasts a striking, fully glass wall, offering a spectacular view of the surrounding greenery.

Outdoor Space
Space is in abundance, as the property sits on a generous plot of approximately 1,755 m². At the front is a charming garden with a characteristic semi-circular driveway. Beside the house stands a spacious, detached brick garage with cavity walls and an upper floor—ideal for parking a classic car, storing bicycles and accommodating a workbench. The upper level offers excellent potential for creating an artist’s studio or hobby space.

At the rear of the house lies a wonderful garden with expansive lawns, large laurel hedges, beautifully landscaped borders and attractive terraces. One terrace behind the kitchen features a charming outdoor fireplace, providing a delightful setting for long summer evenings with family and friends. There is also a cosy veranda with a large terrace and ample space for a lounge set.

Lochem – A Town in the Countryside
Lochem is a small town within a large municipality in the Achterhoek region and has long been a popular destination for those seeking peace and space in the east of the Netherlands. Everything is conveniently nearby: shops, restaurants, good schools, thriving sports clubs, as well as welcoming hotels, an open-air theatre and a theatre with an annual cultural programme.

You will live close to the town centre, with the market square, theatre, various shops and schools all within easy reach. For greater urban connectivity, main roads are nearby: the A1 motorway or the city of Zutphen can be reached in about fifteen minutes. Primary and secondary schools, as well as sports facilities, are easily accessible by bicycle.
One of Lochem’s greatest assets is its truly impressive surrounding nature. The Lochemse Berg, Kaleberg and the forests around the Enk invite long walks, while the surrounding countryside offers countless opportunities for cycling through beautiful landscapes. For the sportier residents, the fully renewed and challenging 90 km mountain bike trail through the surrounding forests and rural areas is a real highlight.

In Conclusion
A home to fall in love with: beautifully finished, energy-efficient and a pleasure to behold. Has your curiosity been piqued? Please contact us and we will be delighted to provide you with an extensive tour.

General Information
Year of construction: 1947, fully renovated and extended in 2014
Maintenance: Well maintained
Insulation: Roof insulation, partial wall insulation, partial floor insulation, HR++ glazing and insulated extension walls
Heating: Underfloor heating and radiators, gas-fired central heating (Nefit, 2023)
Location: Quiet setting in a wooded environment
Outbuilding: Stone garage / hobby space (38 m²) with spacious storage loft (20 m²)
Sustainability: Rainwater harvesting system (approx. 5,000 litres) for, among other things, toilet flushing
Special features: Groundwater pump with sprinkler system throughout the garden

Volume: 862 m³
Living area: 215 m²
Other indoor space: 19 m²
External storage space: 59 m²
Plot size: 1,755 m²
Energy label: C
Acceptance: By mutual agreement
This property comes with a building inspection report and an energy label.

Features

Transfer of ownership
Asking Price
€ 1.245.000
Status
beschikbaar
Acceptance
in overleg
Construction
Kind of house
Villa
Building type
vrijstaande woning
Construction period
1947
Energy rating
C
Roof type
samengesteld dak
Bedrooms
4
Bathrooms
1
Surface Areas And Volume
Living Area
215 m2
Other indoor space
19 m2
Exterior space attached to the buildinge
6 m2
External storage space
59 m2
Volume in cubic meters
862 m3
Plot Size
1755 m2
Facilities
Mechanische ventilatie
Rookkanaal
Schuifpui
Dakraam
Glasvezel kabel
Natuurlijke ventilatie
Aan rustige weg
In bosrijke omgeving
Baerz & Co Property Brochure

Brochure

Videos

Floor Plans

Lunshof Makelaardij bv

Keizer Karelweg 342
1181 RJ Amstelveen

info@lunshof.nl
+31 20 345 8 345

www.lunshof.nl

Information / Viewing request

Stefano B. Djoemena profile image
Stefano B. Djoemena
Real Estate Agent

Buying a Luxury Property in Lochem

Lochem’s luxury property market pairs scenic countryside living with cultural depth and privacy. The community’s refined atmosphere, exceptional services, and international reach make it an attractive enclave for sophisticated buyers and investors.