Baerz & Co is een landelijk samenwerkingsverband van zorgvuldig geselecteerde boutique luxury makelaars. Samen vormen wij één netwerk, met één gedeeld aanbod. De woningen die u op onze website ziet, zijn afkomstig van alle aangesloten kantoren binnen Baerz & Co. Daardoor is niet ieder object rechtstreeks door ons kantoor in verkoop, maar door een gespecialiseerde collega binnen ons netwerk. Heeft u een woning gevonden die u aanspreekt en wilt u meer informatie? Dan brengen wij u graag persoonlijk in contact met de betreffende verkoopmakelaar, zodat u direct en zorgvuldig wordt begeleid.

LEIDEN
Fruinlaan 8 - 2313 ER
Netherlands

Stefano B. Djoemena profile image
Stefano B. Djoemena
Real Estate Agent
€1,375,000 k.k.
Living Area
220m2
Plot Size
358m2
Bedrooms
7

Description

Royaal wonen met eigen garage aan de mooiste laan in de weide omgeving.

Ooit heeft deze heerlijke woning onderdak geboden aan een gezin met maar liefst zes kinderen én een artsenpraktijk. Dit zegt al wel heel veel over de ruimte. En niet alleen in de woning is veel ruimte te vinden, maar ook eromheen: een fantastisch perceel met ook nog eens een eigen garage met oprit.

De Fruinlaan is één van de weinige lanen, waar naar eigen inzicht en ontwerp in de jaren '20 en '30 woningen zijn gebouwd. Ook deze woning typeert zich door het unieke ontwerp en vormt met het verspringende dak voor een bijzonder aanzicht en indeling.
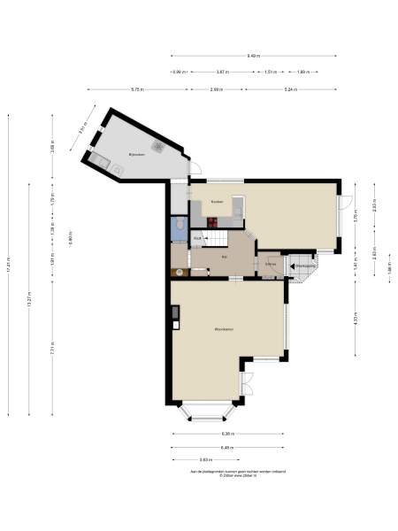
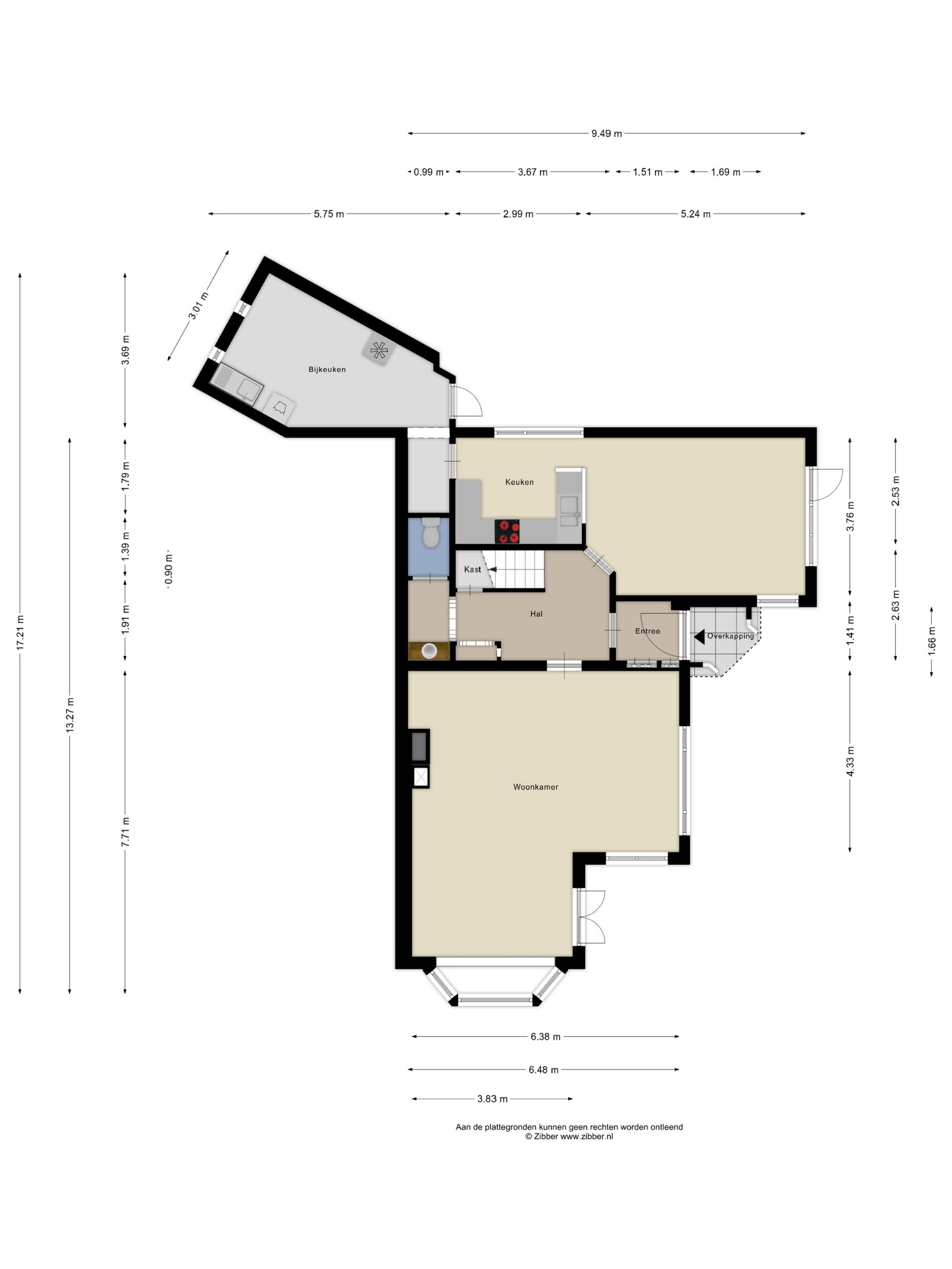
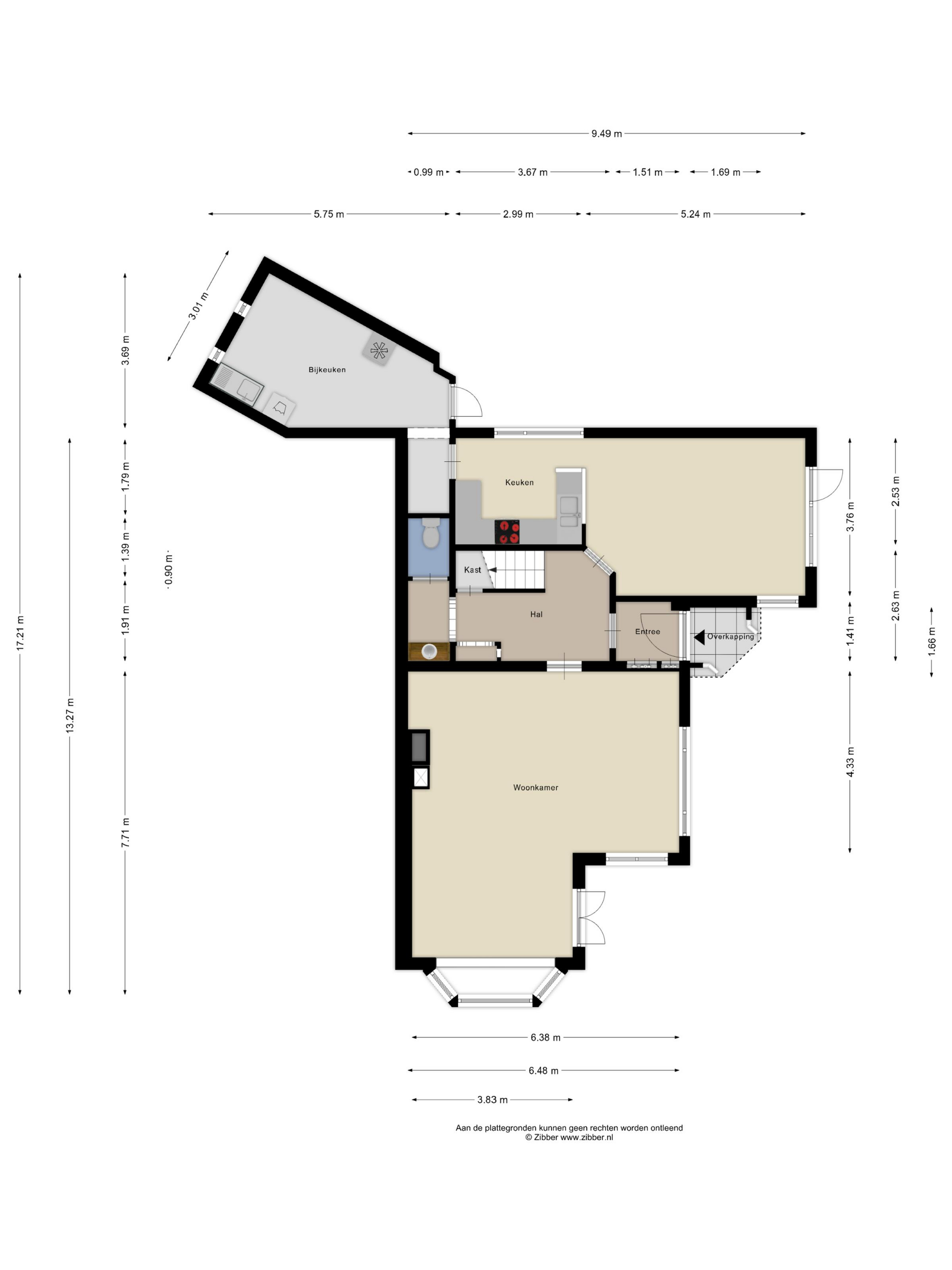
INDELING

Begane grond
Na binnenkomst via de entree kom je in de centrale hal. De bordestrap, het glas-in-lood en de panelen vormen het statige hart van de woning en verbinden alle vertrekken en verdiepingen met elkaar. Aan de voorzijde ligt de L-vormige woonkamer met aan de ene zijde een zitgedeelte met haard en openslaande deuren naar de tuin en aan andere zijde plaats voor bureau, tv-hoek of formal dining.

Aan de achterzijde van de woning ligt de keuken met alle ruimte voor de keukenopstelling en een grote eettafel. De deur naar de tuin staat bij mooi weer waarschijnlijk altijd open en zal voor een zoete inval van vrienden en familie zorgen. Aansluitend aan de keuken bevindt zich de bijkeuken met achterdeur naar de tuin. Wasmachine, droger, extra koel-vriescombinatie, wijnklimaatkast: er is ruimte genoeg!

1e etage
De centrale overloop biedt toegang tot alle kamers. Daarbij bevinden zich aan de voorzijde twee slaapkamers, waarvan één met openslaande deuren naar het ruime dakterras en weids uitzicht over de voortuin en Fruinlaan. Aan de achterzijde bevinden zich ook twee slaapkamers, waarvan één in gebruik is als de ouderslaapkamer met een direct verbinding naar de badkamer. Op de overloop bevindt zich nog een aparte wc met fonteintje. Trouwens, alle slaapkamers beschikken over een eigen wastafel met marmeren achterblad.

2e etage
Hier wordt de bijzondere en speelse opzet van de woning goed zichtbaar. Het dak heeft verschillende nokken en dit is terug te zien in de indeling. Nu zijn er meerdere slaapkamers, een douche en ook nog een speelzolder die speels met elkaar in verbinding staan. Uiteraard kan dit nog naar eigen inzicht worden ingedeeld.

Zolder
Boven de 2e etage bevindt zich nog een zolder met stahoogte en ruimte voor koffers, skies, kerstversiering en veel meer.

Garage
De garage biedt alle ruimte voor een auto en heeft onder de kap nog een zeer ruime zolder. Ideaal voor extra bergruimte, maar ook als speelzolder of bijvoorbeeld een gastenverblijf.

Tuin
De woning ligt op een ruim perceel met aan drie zijden tuin, waarmee de mogelijkheid wordt geboden om op elk moment van de dag te genieten van de zon of juist de schaduw. De openslaande deuren vanuit de woonkamer, de deur vanuit de keuken, de achterdeur van de bijkeuken en de deur vanuit de garage verbinden huis en tuin vanuit alle vertrekken op de begane grond.

BIJZONDERHEDEN

- beschermd stadsgezicht
- ouderdomsclausule
- asbestclausule
- niet-bewonersclausule

Features

Transfer of ownership
Asking Price
€ 1.375.000 k.k.
Status
beschikbaar
Acceptance
in overleg
Construction
Kind of house
Herenhuis
Building type
twee onder een kapwoning
Construction period
1930
Energy rating
F
Roof type
zadeldak
Bedrooms
7
Bathrooms
2
Surface Areas And Volume
Living Area
220 m2
Other indoor space
8 m2
Exterior space attached to the buildinge
11 m2
External storage space
22 m2
Volume in cubic meters
806 m3
Plot Size
358 m2
Facilities
Mechanische ventilatie
Tv kabel
Rookkanaal
Glasvezel kabel
Aan rustige weg
In woonwijk
Vrij uitzicht
Baerz & Co Property Brochure

Brochure

Videos

Lunshof Makelaardij bv

Keizer Karelweg 342
1181 RJ Amstelveen

info@lunshof.nl
+31 20 345 8 345

www.lunshof.nl

Information / Viewing request

Stefano B. Djoemena profile image
Stefano B. Djoemena
Real Estate Agent

Buying a Luxury Property in Leiden

Leiden offers exceptional heritage, dynamic culture, and curated services, creating an appealing environment for international residents. With refined homes, vibrant academia, and discreet luxury, this canal city delivers a sophisticated lifestyle for a discerning, global community.