Baerz & Co is een landelijk samenwerkingsverband van zorgvuldig geselecteerde boutique luxury makelaars. Samen vormen wij één netwerk, met één gedeeld aanbod. De woningen die u op onze website ziet, zijn afkomstig van alle aangesloten kantoren binnen Baerz & Co. Daardoor is niet ieder object rechtstreeks door ons kantoor in verkoop, maar door een gespecialiseerde collega binnen ons netwerk. Heeft u een woning gevonden die u aanspreekt en wilt u meer informatie? Dan brengen wij u graag persoonlijk in contact met de betreffende verkoopmakelaar, zodat u direct en zorgvuldig wordt begeleid.

HUIJBERGEN
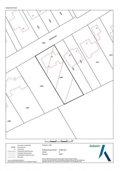
Westerstraat 49 b - 4635 CT
Netherlands

Stefano B. Djoemena profile image
Stefano B. Djoemena
Real Estate Agent
€1,145,000 k.k.
Living Area
301m2
Plot Size
1030m2
Bedrooms
5

Description

Aan de rand van het geliefde dorp Huijbergen, op een rustige en groene locatie, ligt deze indrukwekkende vrijstaande villa uit 2008. Een woning waar werkelijk aan alles is gedacht: van slimme indelingen tot hoogwaardige afwerking en duurzame moderniseringen. Deze villa is meer dan instapklaar, ze is klaar voor de toekomst én voor een nieuwe eigenaar die comfort, ruimte en privacy zoekt.

Bij binnenkomst valt direct de imposante entree op: licht en ruimte komen u tegemoet, een voorbode van wat deze villa te bieden heeft. De halfopen living vormt het hart van het huis, met prachtig zicht op de tuin en openslaande deuren naar het terras.

De Boffi keuken links van de living is een echte blikvanger. Voorzien van een kookeiland, een vaste kastenwand met inbouwapparatuur en ruimte voor een grote eettafel. Ideaal voor lange diners met vrienden en familie. Ook hier brengen openslaande deuren naar de tuin veel licht en een heerlijk vrij gevoel.

Aansluitend op de keuken treft u een grote bijkeuken en separate berging, perfect voor huishoudelijke apparatuur en als tweede entree vanaf de oprit. Garderobeproblemen zijn hier verleden tijd: een zee aan opbergruimte voor jassen, tassen en schoenen biedt dagelijks gemak.

Aan de rechterzijde van de woning bevindt zich een tweede living, een ideale plek voor rust, hobby’s, thuiswerken of als speelruimte voor de kinderen. Ook deze ruimte heeft openslaande deuren naar de tuin.

Op de eerste verdieping bevinden zich drie slaapkamers, waaronder een zeer luxe uitgevoerde master bedroom. Hier stapt u ’s ochtends zo het balkon op via openslaande deuren, een plek om echt tot rust te komen. Aan de ene zijde van de kamer bevindt zich een ruime walk-in closet, aan de andere een badkamer met vrijstaand ligbad, riante inloopdouche en een meer-persoons sauna. Pure verwennerij.

De tweede verdieping biedt nog eens twee ruime slaapkamers, een tweede badkamer en een aparte berging, ideaal voor een groot gezin, gasten of een combinatie van wonen en werken.

De fraai aangelegde achtertuin biedt ultieme privacy en een prachtig vrij uitzicht over aangrenzende weilanden waar regelmatig paarden grazen, een plaatje dat nooit verveelt. Meerdere terrassen zorgen ervoor dat u de hele dag door kunt kiezen tussen zon of schaduw.

De absolute blikvanger? Het riante zwembad met een stijlvol poolhouse met omkleedruimte, veranda en een volledig geautomatiseerde technische pomp/filter- installatie t.b.v. het zwembad en sproei-installatie t.b.v. de tuin. Zo heeft u nergens omkijken naar, enkel genieten.

In 2023 zijn bovendien 24 zonnepanelen geplaatst én is een dakkapel met geïntegreerde airco-installatie gerealiseerd. Een belangrijke stap richting energiezuinig en comfortabel wonen.

Deze villa is een zeldzame combinatie van rust, ruimte, luxe en techniek, op een prachtige plek in het groene buitengebied van Huijbergen. Maak snel een afspraak voor een bezichtiging, want dit is toch de ultieme woondroom?

INDELING:
Begane grond:
Hal/entree met een trapkast, wandafwerking stucwerk, tegelvloer (60x60), plafond afgewerkt met stucwerk;

uitgebreide meterkastinstallatie met 3-fase aansluiting, 13 groepen, 2x krachtstroomgroepen t.b.v. woning, krachtstroomgroep t.b.v. tuinhuis, zonnepanelengroep, groep t.b.v. elektrisch laden auto en 4 aardlekschakelaars;

luxe betegeld toilet met sanitair van Boffi;

sfeervolle woonkamer midden (ca. 35 m²) voorzien van een houthaard, wandafwerking stucwerk, tegelvloer (60x60), plafond afgewerkt met stucwerk, tuindeuren naar tuin/terras;

gezellige zithoek rechts (ca. 38 m²), geplaats in het verlengde van de woonkamer, wandafwerking stucwerk, tegelvloer (60x60), plafond afgewerkt met stucwerk, tuindeuren naar tuin/terras;

woonkeuken, waarin geplaatst een in de lengte opgestelde Boffi inbouwkeuken, voorzien van een Corian aanrechtblad met een spoelbak, inbouw 5-pits keramische kookplaat, -koeler, -vriezer, -combi oven/magnetron, -vaatwasser, -afzuigkap en een koffieautomaat, wandafwerking stucwerk, tegelvloer (60x60), plafond afgewerkt met stucwerk vv. inbouwspots, tuindeuren naar tuin/terras;

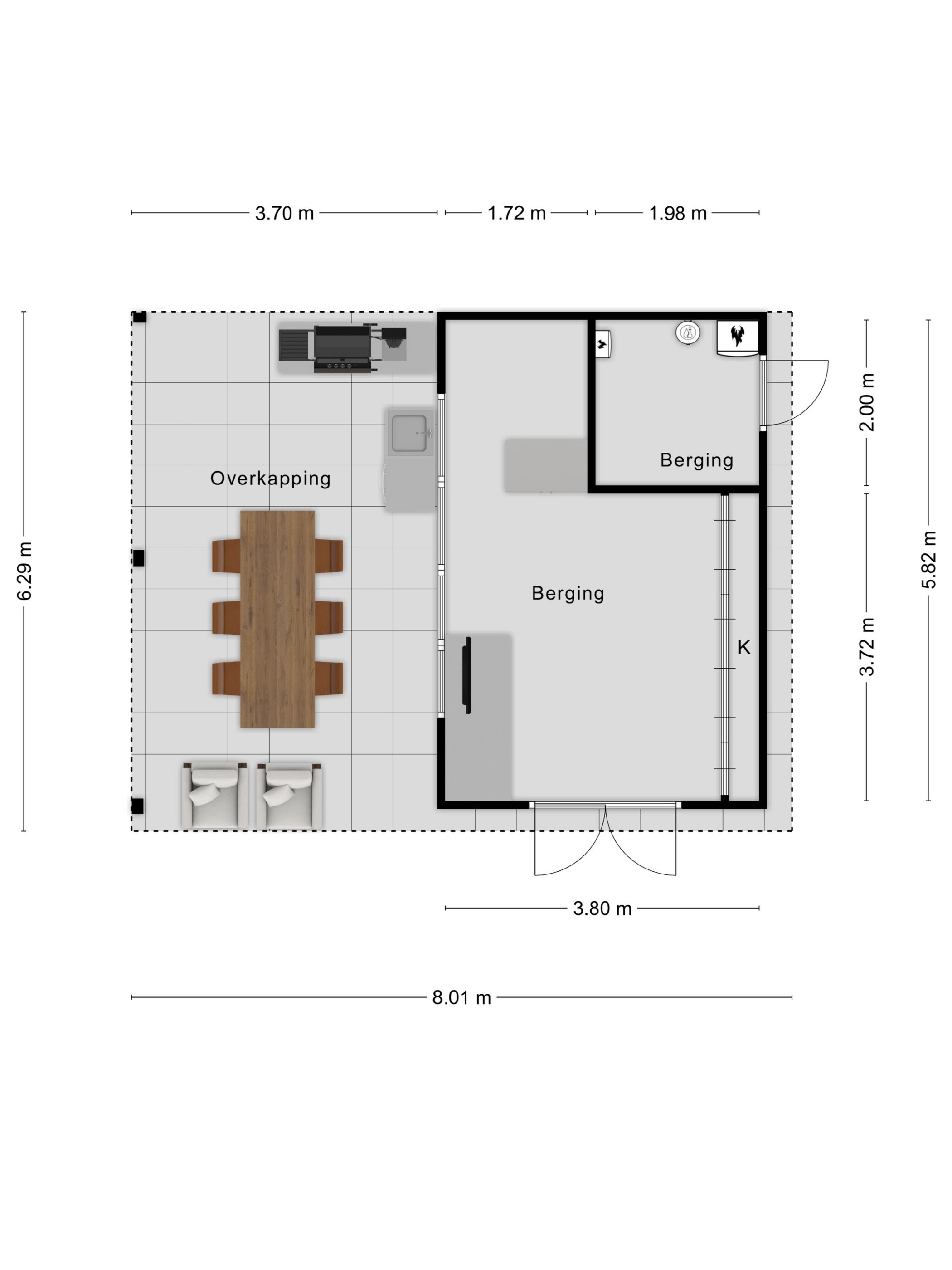
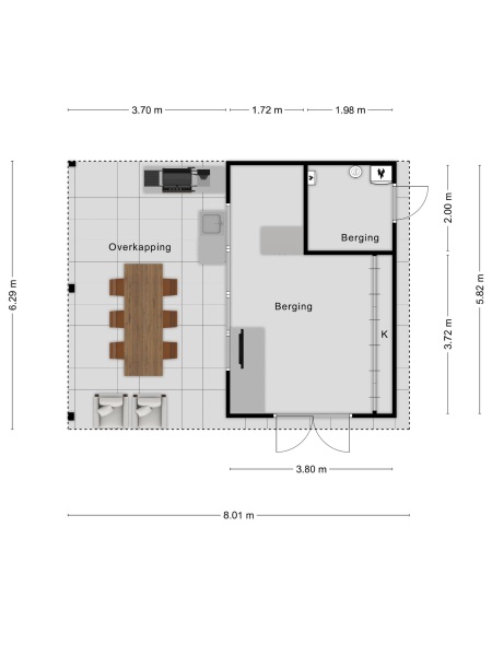
bijkeuken (vm. garage) opgesplitst in bijkeuken (achter) en berging (voor), in de bijkeuken een keukenblok met een spoelbak, wasmachine-/drogeraansluiting, stortbak, radiatoren en kasten op maat, wandafwerking stucwerk, tegelvloer (60x60), plafond afgewerkt met stucwerk, tuindeur naar tuin/terras achterzijde vanuit de berging en dubbele deuren naar de oprit aan de voorzijde;

vanuit de hal een trap naar de 1e verdieping.

1e verdieping:
Overloop, wandafwerking stucwerk, vloer afgewerkt met tapijt, plafond afgewerkt met stucwerk;

slaapkamer achterzijde (ca. 20 m²) met een inloopkast en toegang tot badkamer en-suite, wandafwerking stucwerk vloer afgewerkt met tapijt, plafond afgewerkt met stucwerk, tuindeuren naar het balkon;

balkon, voorzien van vlonders;

slaapkamer links voor (ca. 19 m²), wandafwerking stucwerk en behang, vloer afgewerkt met tapijt, plafond afgewerkt met spuitwerk;

slaapkamer/kantoor rechts voor (ca. 13 m²), wandafwerking stucwerk, vloer afgewerkt met tapijt, plafond afgewerkt met stucwerk;

betegelde Boffi badkamer en-suite, voorzien van een vrijstaand ligbad, inloopdouche, 2e wandcloset, badkamermeubel met een wastafel, meer- persoons sauna en een designradiator;

vanuit de overloop een trap naar de 2e verdieping.

2e verdieping:
Overloop voorzien van een bergkast vv. opstelplaats HR-combiketel en 2-tal WTW-units, wandafwerking stucwerk, vloer afgewerkt met tapijt, plafond afgewerkt met stucwerk vv. inbouwspots

slaapkamer rechts, voorzien van op maat gemaakte kasten, studiehoek, 2-tal dakramen en een dakkapel aan de achterzijde, wandafwerking stucwerk, vloer afgewerkt met tapijt, plafond afgewerkt met stucwerk vv. inbouwspots en dakplaten in het zicht;

slaapkamer links, voorzien van op maat gemaakte kasten, studiehoek, 2-tal dakramen en een dakkapel aan de achterzijde vv. airco-installatie, wandafwerking stucwerk, vloer afgewerkt met tapijt, plafond afgewerkt met stucwerk en dakplaten in het zicht;

2e betegelde Boffi badkamer, voorzien van een inloopdouche, 3e wandcloset, badkamermeubel met een wastafel, dressoirkast en een dakkapel.

Bijgebouwen:
Luxe houten poolhouse vv. veranda met vloerverwarming, op maat gemaakte kasten, kleedruimte, zonne-screens, opstelplaats HR-combiketel, sproei installatie t.b.v. tuin en een bergruimte vv. zwembadpomp/filter (geautomatiseerd).

Tuin:
Aangelegde tuin rondom, zonnige gesitueerd op het zuiden, terras bestraat met natuurstenen sierbestrating en voorzien van borders, gazon, grindterras, elektra, tuinverlichting, buitenkraan, zwembad met elektrisch dek, buitendouche, een zonnescherm t.p.v. woonkamer en een poolhouse (vv. vloerverwarming) met aansluitend een veranda vv. buitenkeuken, lichtspots en zonne-screens;

oprit bestraat met sierbestrating voorzien van parkeergelegenheid voor meerdere auto’s.

Bouwaard:
Woonhuis:
Traditioneel gebouwd in spouw, opgetrokken in metselbaksteen, begane grondvloer uitgevoerd in beton, betonnen verdiepingsvloeren, onderschoten kap gedekt met geglazuurde pannen en platdakconstructie gedekt met bitumineuze dakbedekking. Buitenschilderwerk is in 2022 uitgevoerd. De gehele buitengevel is in maart van dit jaar opnieuw gekeimd.

Poolhouse:
Luxe houten tuinhuis, in hout opgebouwd en platdak gedekt met bitumen waarop de zonnepanelen zijn geplaatst.

Isolatie en energie:
De woning is voorzien van vloer-, spouwmuur- en dakisolatie alsmede van isolerende beglazing in hardhouten kozijnen. Aanvullend is de woning voorzien van maar liefst 24 zonnepanelen (2023), geplaatst op het poolhouse.

Verwarming en warmwatervoorziening:
De woning is voorzien van centrale verwarming. De HR-combiketel (fabricaat Vaillant, bouwjaar 2022), is geplaatst in de bergkast op de 2e verdieping en voorziet tevens in warmwater. De woning is geheel voorzien van vloerverwarming (m.u.v. de garage).

Het poolhouse is tevens voorzien van centrale verwarming. De HR-combiketel (fabricaat Nefit, bouwjaar 2008), is geplaatst in de technische ruimte en voorziet het poolhouse in vloerverwarming, warm water, en dient voor verwarming van het zwemwater.

Features

Solar panels
Air conditioning
Transfer of ownership
Asking Price
€ 1.145.000 k.k.
Status
verkocht onder voorbehoud
Acceptance
in overleg
Construction
Kind of house
Villa
Building type
vrijstaande woning
Construction period
2008
Energy rating
A
Roof type
samengesteld dak
Bedrooms
5
Bathrooms
2
Surface Areas And Volume
Living Area
301 m2
Other indoor space
0 m2
Exterior space attached to the buildinge
19 m2
External storage space
22 m2
Volume in cubic meters
1115 m3
Plot Size
1030 m2
Facilities
Buitenzonwering
Airconditioning
Dakraam
Zonnepanelen
Natuurlijke ventilatie
In woonwijk
Vrij uitzicht
Baerz & Co Property Brochure

Brochure

Videos

Floor Plans

Lunshof Makelaardij bv

Keizer Karelweg 342
1181 RJ Amstelveen

info@lunshof.nl
+31 20 345 8 345

www.lunshof.nl

Information / Viewing request

Stefano B. Djoemena profile image
Stefano B. Djoemena
Real Estate Agent

Buying a Luxury Property in Huijbergen

Huijbergen attracts those seeking privacy, community, and refined countryside living. A discreet market, rich traditions, and access to world-class services make it a destination of enduring appeal for international buyers.