Baerz & Co is een landelijk samenwerkingsverband van zorgvuldig geselecteerde boutique luxury makelaars. Samen vormen wij één netwerk, met één gedeeld aanbod. De woningen die u op onze website ziet, zijn afkomstig van alle aangesloten kantoren binnen Baerz & Co. Daardoor is niet ieder object rechtstreeks door ons kantoor in verkoop, maar door een gespecialiseerde collega binnen ons netwerk. Heeft u een woning gevonden die u aanspreekt en wilt u meer informatie? Dan brengen wij u graag persoonlijk in contact met de betreffende verkoopmakelaar, zodat u direct en zorgvuldig wordt begeleid.

HERTEN
Drususberg 15 - 6049 MA
Netherlands

€1,740,000
Living Area
266m2
Plot Size
1051m2
Bedrooms
5

Description

Living on the water, a holiday feeling forever - Drususberg 15 Herten

This is Oolderveste Aan 't Water!
Water surrounds an idyllic place to live. Words like 'unique' and 'special' do this place an injustice. From your covered veranda you look out over the Oolderplas; a painting that never bores. Living on the water is a feeling!

This beautiful, detached villa proudly stands on the head of the peninsula. The special architecture, the very spacious plot and the view of the Oolderplas are seductive. Will you soon be sitting on your covered veranda and watching the sun set on a warm summer evening?

The general layout is as follows:

Entrance
Welcome home! Enter the house in the reception hall where you will find the meter cupboard, the spacious toilet, the staircase to the first floor and the passage to the living room.

Living room
The living room is located at the front of the house. Due to the deep front garden and the large distance to the street, you can also sit here wonderfully quiet and free. A sea of ??light enters through the large windows at both the front and back of the house.
The eye-catcher in this room is the spacious gas fireplace, which serves in a luxurious way as a room divider between the living room and the dining room.
From the dining room you look out over the water and you can enjoy a great view.

Living kitchen
The layout of this large villa is practical, attractive and focused on a Burgundian lifestyle. The large living kitchen with island is the lively heart of the house. The luxury kitchen has an attractive design with marble worktop.
A bar has been created at the end of the island. Here you can enjoy a cup of coffee and the newspaper in the morning or the children can do their homework while you are cooking. All conveniences have been considered, such as a Quooker with hot and cold water, a Bora induction hob, a dishwasher, fridge, freezer and wine climate cabinet from Miele and an oven and microwave from AEG. The utility room is equipped with the white goods connections and has a door to the outside, so you don't have to go through the house with the groceries.

Veranda/garden
The covered veranda is an extension of your home and is perfect for evening meals. Even when it gets a bit colder, you can sit here comfortably, possibly with a heater.

From the veranda you can walk straight into the (to be landscaped) garden. Experience a real holiday feeling here because of the breathtaking view. Choose your own garden design and complete the picture!

There is also a detached outdoor storage room/garage in the garden.

The bedrooms
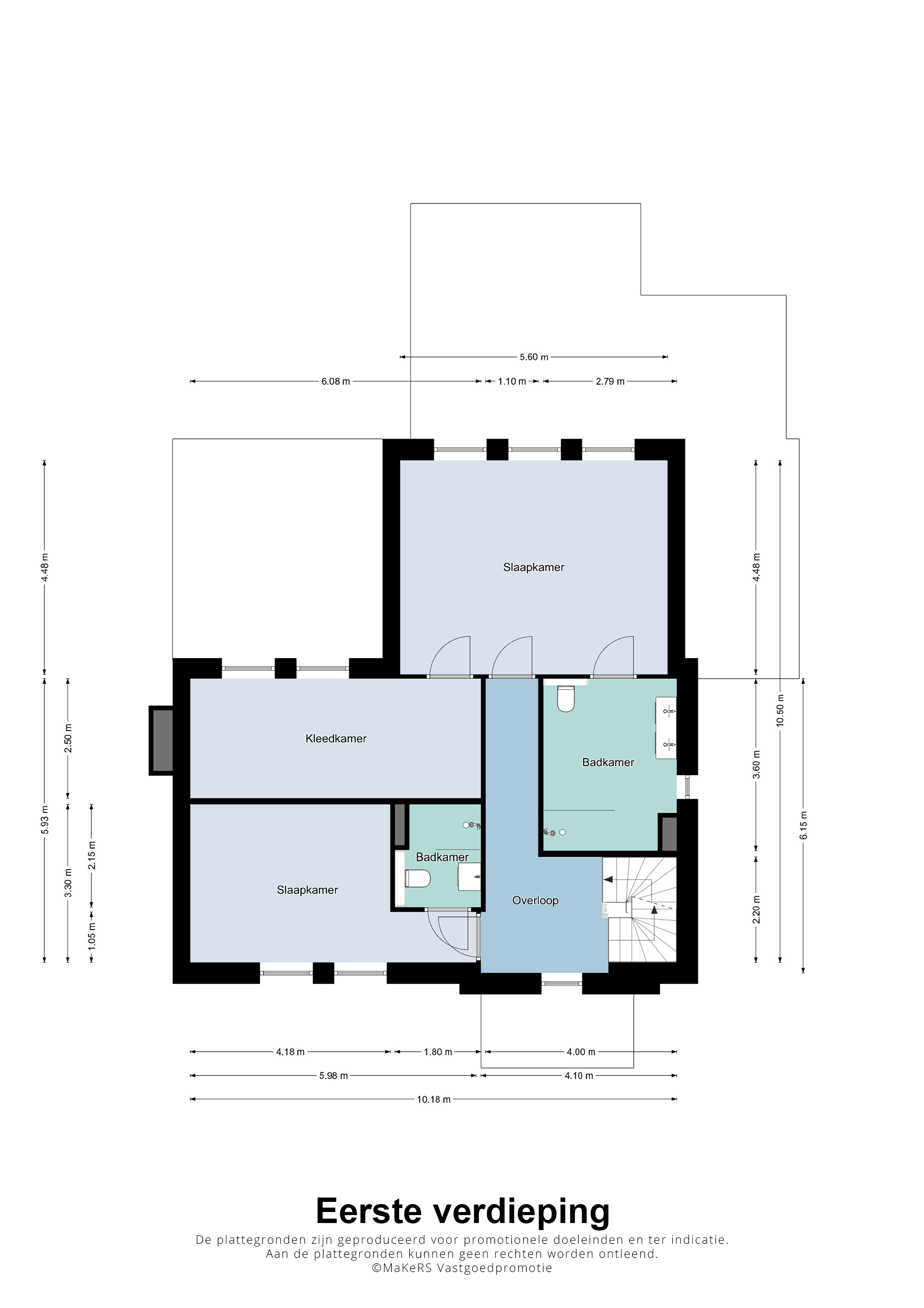
Via the landing, with daylight, you enter the 2 spacious bedrooms, both with their own bathroom.
The master bedroom is located at the back of the house. Here you wake up wonderfully with the beautiful view over the water. The master bedroom has its own bathroom with walk-in shower, bath and wide, double sink. There is also access to the very spacious and luxurious walk-in closet.
The second bedroom is located at the front of the house and also has its own bathroom. This is equipped with a walk-in shower, sink and toilet.

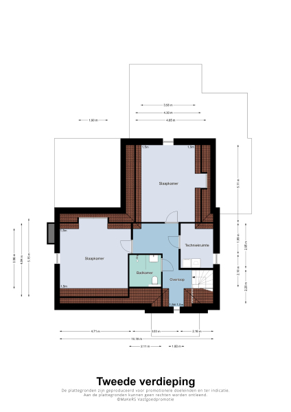
On the L-shaped second floor with high ceilings and a dormer window you will find bedroom 3 and 4. Both rooms are spacious and overlook the water. The third bathroom is also located here, which has a walk-in shower, sink and toilet. Finally, you will find the technical room here, where you will also find white goods connections.

Special features:
- The house is (partly) furnished
- Air conditioning in the living room and in all bedrooms
- Sonos sound system on the ground floor
- Underfloor heating adjustable per room
- Detached garage/storage
- Breathtaking and unique view

Plan a viewing and experience the luxury, the view and the freedom of this beautiful and ready-to-move-in villa!

Features

Solar panels
Air conditioning
Transfer of ownership
Asking Price
€ 1.740.000
Status
beschikbaar
Acceptance
in overleg
Construction
Kind of house
Villa
Building type
vrijstaande woning
Construction period
2024
Energy rating
A+++
Roof type
samengesteld dak
Bedrooms
5
Bathrooms
3
Surface Areas And Volume
Living Area
266 m2
Other indoor space
0 m2
Exterior space attached to the buildinge
38 m2
External storage space
24 m2
Volume in cubic meters
1138 m3
Plot Size
1051 m2
Facilities
Tv kabel
Airconditioning
Schuifpui
Glasvezel kabel
Zonnepanelen
Balansventilatie
Aan water
In woonwijk
Vrij uitzicht
Aan vaarwater
Landelijk gelegen
Baerz & Co Property Brochure

Brochure

Videos

Floor Plans

Lunshof Makelaardij bv

Keizer Karelweg 342
1181 RJ Amstelveen

info@lunshof.nl
+31 20 345 8 345

www.lunshof.nl

Information / Viewing request

Stefano B. Djoemena profile image
Stefano B. Djoemena
Real Estate Agent

Buying a Luxury Property in Herten

Herten offers refined living amidst tranquil landscapes, enriched by a welcoming community and expert property services. Its international accessibility, cultural offerings, and discreet luxury continue to attract discerning global residents and investors.