Ons kantoor is lid van Baerz & Co luxury homes; een Nederlands platform dat exclusieve woningmakelaars met elkaar verbindt. Voor meer informatie over ons landelijke aanbod en dienstverlening kunt u contact opnemen met ons secretariaat.

HAAREN
Nieuwe Erven 12 - 5076 NP
Netherlands

Marleen de Bekker profile image
Marleen de Bekker
Real Estate Agent
€1,250,000 k.k.
Living Area
184m2
Plot Size
918m2
Bedrooms
5

Description

This family home Haaren offers a rare blend of privacy and spacious living, set on a generous 918 m² plot on the village’s edge. With a living area of 184 m², the home presents four bedrooms on a single level, making it ideal for harmonious family living. Thoughtful design is evident in the flow from a sunny living room—framed by expansive windows and a central fireplace—into a modern open kitchen finished in high-gloss white with a composite countertop, Quooker, and two ovens. A large utility room connects to both the garage and garden, enhancing daily practicality.

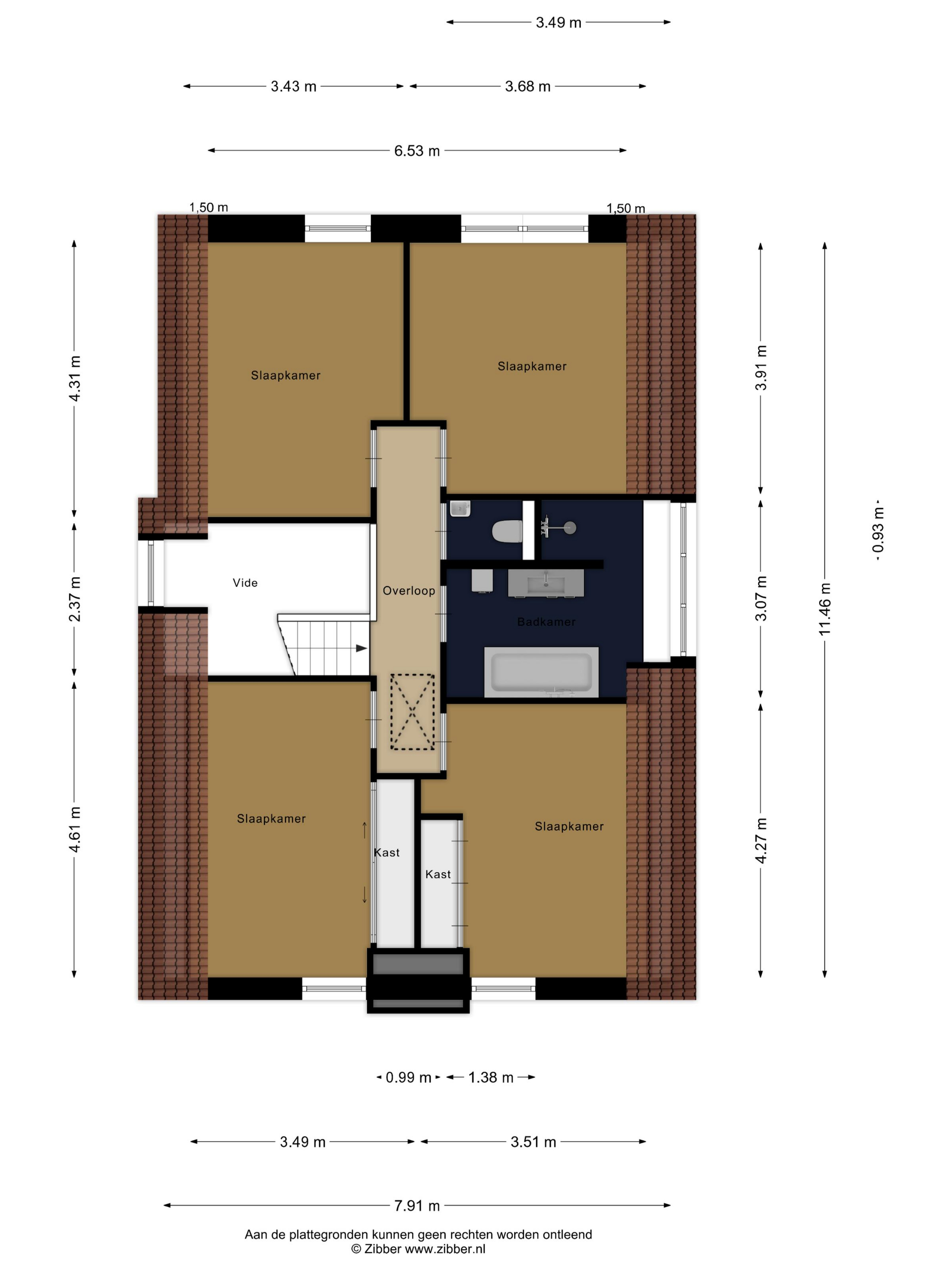
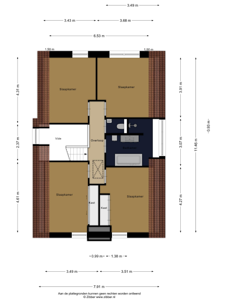
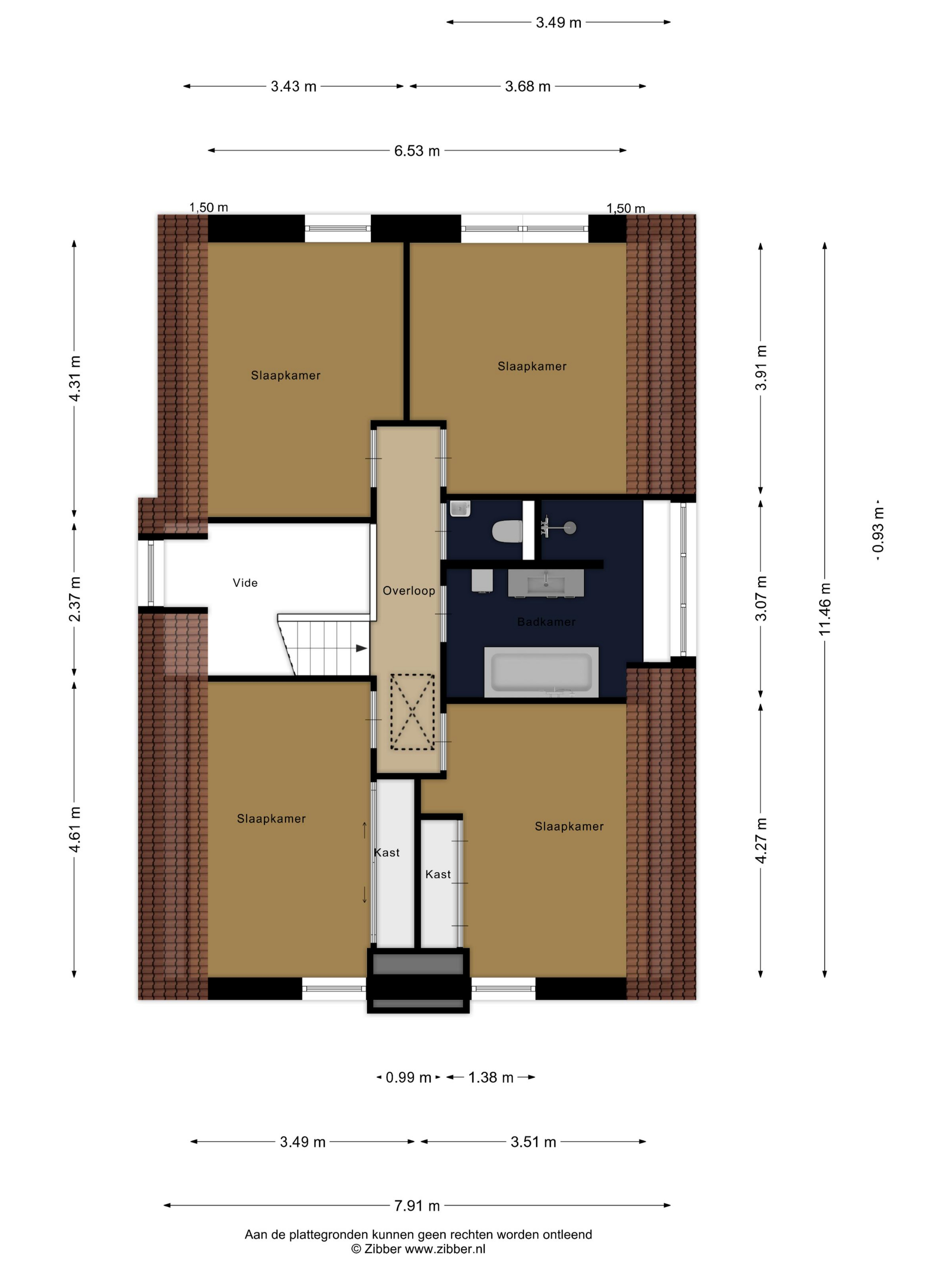
Upstairs, each bedroom offers approximately 15 m² of tranquil retreat, while the bathroom features a walk-in shower, double vanity, large tub, natural light, and underfloor heating. An attic running the full house length provides ample storage for seasonal needs.

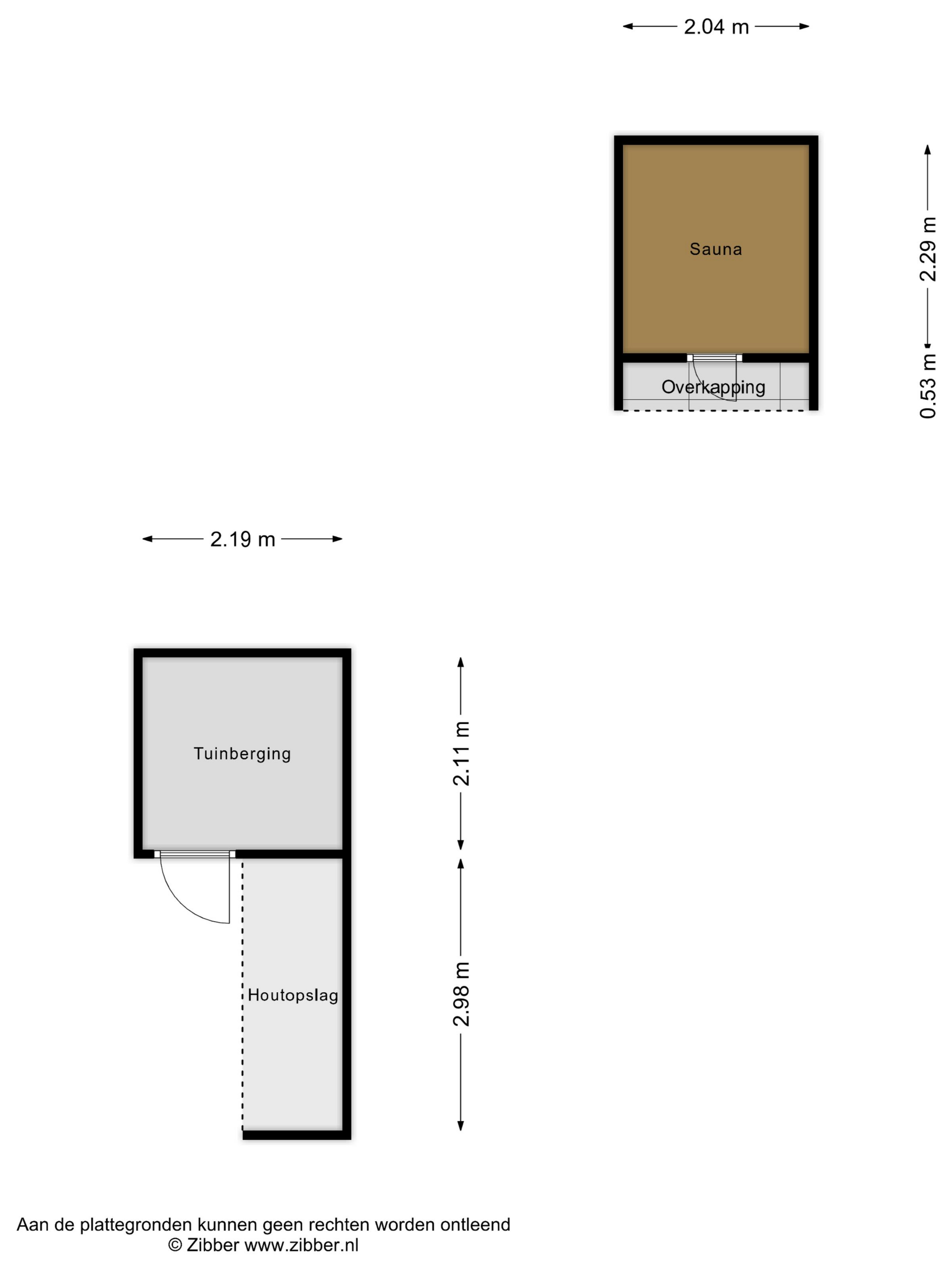
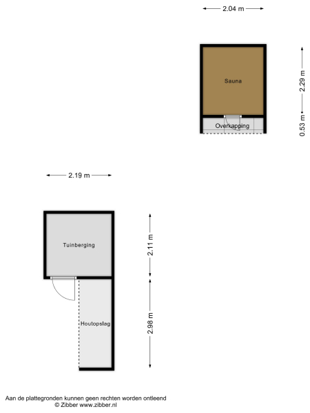
Outdoor rhythms shift between a broad sun terrace, covered area with skylight, and a secluded sauna. Mature hedgerows ensure privacy, with space for play and relaxation. The insulated 3.85 m by 6.30 m garage adds versatility, while the driveway accommodates four to six cars. Eighteen solar panels, full insulation, and an A+ energy rating affirm lasting efficiency.

The home stands in a peaceful residential enclave of Haaren, within reach of cafes, restaurants, cycling paths, and the expansive Kampina nature reserve and Loonse en Drunense Dunes National Park. The combination of indoor-outdoor flow, contemporary comforts, and proximity to village life define this property as an inviting family retreat in the heart of the Netherlands.

Explore Haaren with Baerz, Your Trusted Personal Property Finder & Advisor

Discerning clients benefit from advisors who possess deep local insight, strong relationships with property holders, and fluency in cross-border structuring. Many of Haaren’s finest estates change hands privately, requiring an expert intermediary skilled in negotiation, thorough due diligence, and bespoke service. The value of an experienced advisor lies in access to hidden opportunities and in safeguarding clients’ interests throughout complex transactions.

Special Features

Solar panels

Features

Transfer of ownership
Asking Price
€ 1.250.000 k.k.
Status
beschikbaar
Acceptance
in overleg
Construction
Kind of house
Eengezinswoning
Building type
vrijstaande woning
Construction period
2016
Energy rating
A+
Roof type
zadeldak
Bedrooms
5
Bathrooms
1
Surface Areas And Volume
Living Area
184 m2
Other indoor space
44 m2
Exterior space attached to the buildinge
36 m2
External storage space
9 m2
Volume in cubic meters
844 m3
Plot Size
918 m2
Facilities
Mechanische ventilatie
Tv kabel
Rookkanaal
Schuifpui
Sauna
Glasvezel kabel
Zonnepanelen
Aan rustige weg
In woonwijk
Baerz & Co Property Brochure

Brochure

Videos

Floor Plans

Finesse Makelaardij

Groenstraat 31
5062 NA Oisterwijk

info@finesse-makelaardij.nl
+31 655757171

www.finesse-makelaardij.nl

Information / Viewing request

Marleen de Bekker profile image
Marleen de Bekker
Real Estate Agent