Ons kantoor is lid van Baerz & Co luxury homes; een Nederlands platform dat exclusieve woningmakelaars met elkaar verbindt. Voor meer informatie over ons landelijke aanbod en dienstverlening kunt u contact opnemen met ons secretariaat.

GORINCHEM
Kalkhaven 23 - 4201 BA
Netherlands

Jeanette van Haaften profile image
Jeanette van Haaften
Real Estate Agent
€1,085,000 k.k.
Living Area
215m2
Plot Size
338m2
Bedrooms
3

Description

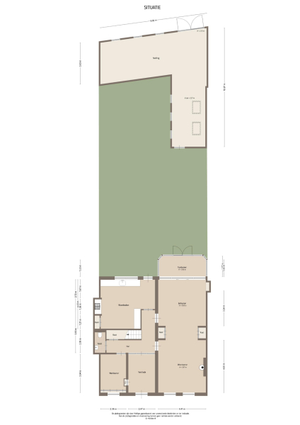
This townhouse Gorinchem occupies a distinguished position in de Bovenstad, the most coveted neighbourhood within Gorinchem’s historic centre. The core of this former headmaster’s residence dates from the 16th century and offers 215 m² of living space on a 338 m² plot, complemented by a broad sun-filled garden and a 59 m² outbuilding with rear access. The property’s status as a municipal monument preserves its authentic architecture, including original wall tiles, marble floors, and a finely detailed vestibule that introduces a sense of understated grandeur.

The ground floor balances historic detail and practical living, with a living room featuring ceilings over three metres high and a fireplace, a study overlooking the quiet street, and a light-filled Siematic kitchen that flows to an east and south-facing garden. The adjacent garden room, with glass sliding doors, offers flexibility as a second sitting area. Upstairs, three double bedrooms each present unique features: a balcony, antique fireplaces, fitted wardrobes, and a tranquil outlook. The bathroom is equipped with a bathtub, walk-in shower, and underfloor heating, while a separate laundry room and cloakroom speak to contemporary comfort.

Modernisation sits discreetly alongside heritage, with twelve solar panels, roof insulation, updated glazing, and a high-efficiency boiler. The outbuilding at the rear accommodates parking or studio space, opening onto a private drive. Everyday conveniences, restaurants, and cultural venues lie within walking distance. Rail and road links, excellent schools, and extensive sports facilities position this townhouse for both serene living and refined connectivity. Living in this property invites a pace of life attuned to the rhythms of a fortified riverside city, amid history and cultivated urban ease.

Special Features

Solar panels

Features

Transfer of ownership
Asking Price
€ 1.085.000 k.k.
Status
beschikbaar
Acceptance
in overleg
Construction
Kind of house
Herenhuis
Building type
tussenwoning
Construction period
1900
Roof type
plat dak
Bedrooms
3
Bathrooms
1
Surface Areas And Volume
Living Area
215 m2
Other indoor space
0 m2
Exterior space attached to the buildinge
9 m2
External storage space
59 m2
Volume in cubic meters
880 m3
Plot Size
338 m2
Facilities
Mechanische ventilatie
Buitenzonwering
Rookkanaal
Zonnepanelen
Aan rustige weg
In centrum
Vrij uitzicht
Baerz & Co Property Brochure

Brochure

Videos

360 Panoramas

360°
360 Panorama - Kalkhaven 23
360°
360 Panorama - Kalkhaven 23
360°
360 Panorama - Kalkhaven 23
360°
360 Panorama - Kalkhaven 23
360°
360 Panorama - Kalkhaven 23
360°
360 Panorama - Kalkhaven 23
360°
360 Panorama - Kalkhaven 23
360°
360 Panorama - Kalkhaven 23

Floor Plans

Bijzonder Wonen Makelaardij

Heilige Geeststraat, 11
5301CP Zaltbommel

info@bijzonderwonen.com
+31 41 868 00 50

www.bijzonderwonen.com

Information / Viewing request

Jeanette van Haaften profile image
Jeanette van Haaften
Real Estate Agent