Baerz & Co is een landelijk samenwerkingsverband van zorgvuldig geselecteerde boutique luxury makelaars. Samen vormen wij één netwerk, met één gedeeld aanbod. De woningen die u op onze website ziet, zijn afkomstig van alle aangesloten kantoren binnen Baerz & Co. Daardoor is niet ieder object rechtstreeks door ons kantoor in verkoop, maar door een gespecialiseerde collega binnen ons netwerk. Heeft u een woning gevonden die u aanspreekt en wilt u meer informatie? Dan brengen wij u graag persoonlijk in contact met de betreffende verkoopmakelaar, zodat u direct en zorgvuldig wordt begeleid.

ENSCHEDE
Kleine Linderesweg 50 - 7531 HH
Netherlands

€2,950,000
Living Area
195m2
Plot Size
72410m2
Bedrooms
3

Description

On a prime location on the outskirts of Enschede, nestled between the leafy villa district Het Stokhorst and the beautiful countryside of ‘t Hooge Boekel, lies the estate “Wienenbleek”. This property includes a spacious farmhouse, generous outbuildings and no less than 7.24 hectares of land. The homestead is marked by monumental trees that form a striking ensemble with the characteristic farmhouse from the 1930’s. From the yard, one can daily enjoy the phenomenal view over the estate’s own meadows, bordered by woods and hedgerows.

Be surprised by the freedom and possibilities that this estate on Enschede’s green edge has to offer.

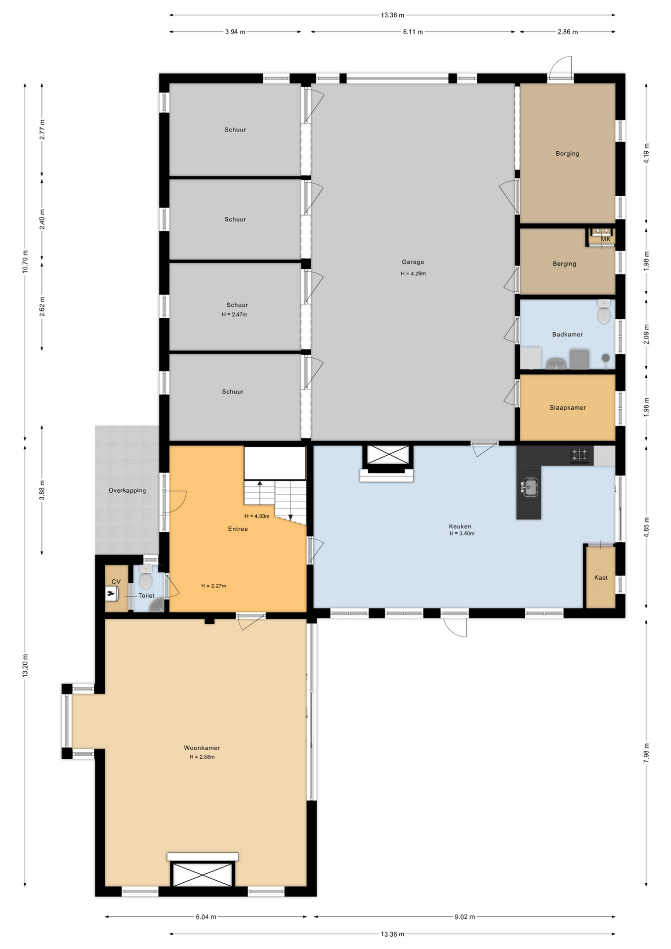
The farmhouse – living with history
At the heart of the estate stands the robust farmhouse, built in 1930. Acquired in the late 1970s by relatives of the current owners, the farmhouse was carefully extended and renovated to become a luxurious residence that also supported hobby farming.

Times, lifestyles and housing preferences evolve. This stunning property is ready for a new chapter—one that you can shape. Keywords might include: expanding the living area and comfort, modernization, sustainability upgrades or creating an additional unit for potential future family care.

Current layout:
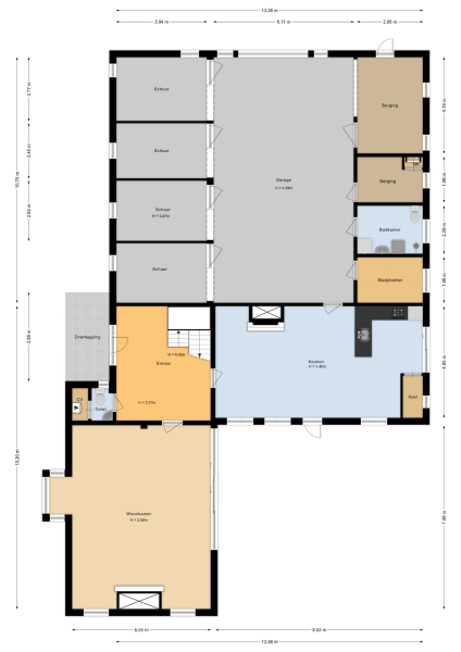
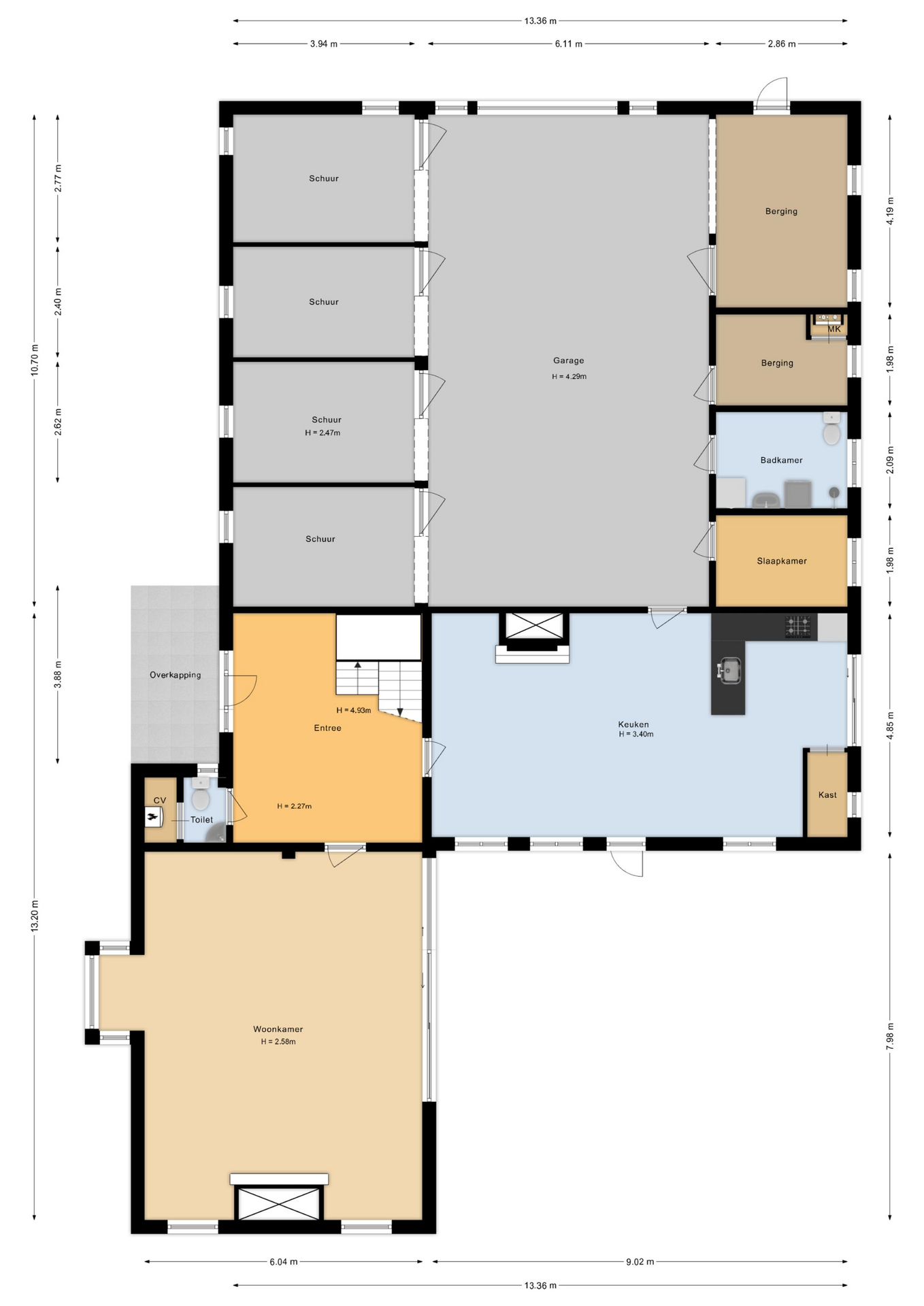
A covered entrance, made of Bentheim stone, leads into a bright hallway with a tiled floor. The hallway provides access to the staircase, guest toilet, a country-style kitchen and a spacious living room in the traditional “endskamer”. Both the kitchen and the endskamer offer views of the scenic Twente countryside, while fireplaces create a warm, intimate atmosphere.

Upstairs are several bedrooms and a spacious bathroom.

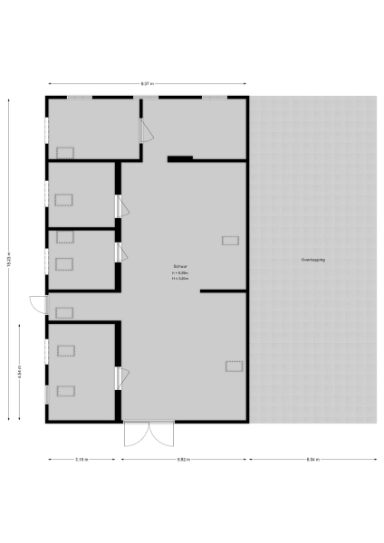
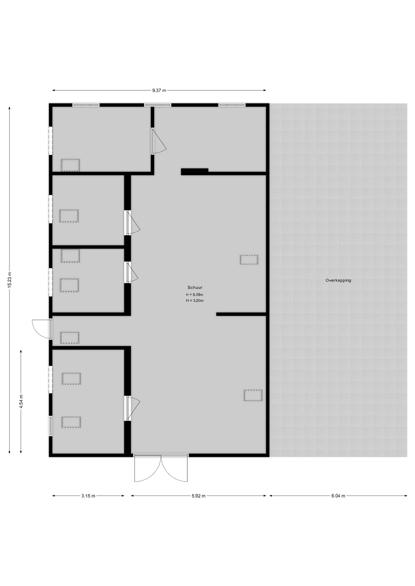
The back of the farmhouse remains structurally original, featuring beautiful wooden beams and a traditional stable door (the so called ‘niendeur’). Where cows once stood, there are now five horse stables, a tack room and additional facilities including an office, shower and laundry connections.

Summer cottage
A short distance from the farmhouse, at the forest’s edge, a modest wooden summer house with a bitumen roof offers a potential guest accommodation.

Outbuildings
Next to the farmhouse is a large barn (225 m²), built in Saxon style with brick walls and wooden gables. It is currently used for equestrian purposes, containing several stables.

Behind the house is a large open barn, ideal for storing multiple cars, a camper, machinery, tools, etc.

Near the summer house is an old sheepfold, partially overgrown. Classic to a traditional Twente farmyard are the small chicken coop and a “spieker” (storage shed), offering opportunities for keeping poultry or small animals and storing or drying firewood from your own forest.

Land, woods and stream
Estate Wienenbleek spans approximately 7.24 hectares, consisting of around 4.5 hectares of meadows, bordered by about 2.4 hectares of forest and hedgerows. The meadows, which include a riding arena, are ideal for horses or other livestock, but can also be left natural to serve as a beautiful transition to the forest.

The forest provides a natural barrier to the adjacent Stokhorst neighborhood and is filled with impressive monumental trees and lush undergrowth. A meandering stream flows through the woods, making this a true paradise for flora and fauna. As the new owner, you might enjoy this daily!

Centrally located – city and nature within reach
This unique estate sits on a central, yet secluded location at the edge of the quiet and green villa district Het Stokhorst. From the farmhouse you can walk straight into the park-like landscape of “de Hoge Boekel”. The surroundings offer many walking and cycling routes to enjoy nature to the fullest.

Nearby cities like Enschede, Hengelo and Oldenzaal are easily accessible, so you can enjoy both rural tranquility and urban amenities. The vibrant center of Enschede is just a stone’s throw away, offering a rich cultural scene, from Michelin-starred restaurants and cozy cafés to museums like Rijksmuseum Twenthe and the Wilminktheater.
Enschede also hosts various educational institutions such as the University of Twente, Saxion University of Applied Sciences and ArtEZ University of the Arts. There are also local primary and secondary schools, sports clubs and shopping centers, making this estate ideal for families or anyone seeking a blend of rural charm and urban convenience.

Zoning plan / land use
The zoning plan “Buitengebied Zuid Oost” of the municipality of Enschede applies. The homestead is designated as residential use with agricultural character. The meadows, riding arena and hedgerows are zoned as agricultural and the forest is zoned as woodland. The entire estate is part of the urban fringe zone of Enschede. For more details, consult the local spatial planning portal or contact the municipality of Enschede.

Dutch natural heritage act (NSW) / rural opportunities / subsidies
The estate is partially classified as an “open to the public” NSW estate. A future owner is required to maintain and reclassify the estate as such. This offers several tax benefits, including exemption from transfer tax, low annual property tax and benefits for gifting or inheritance.

The guide “Buitenkans” offers opportunities for repurposing outbuildings such as through the VAB (vacated agricultural buildings) scheme. Subsidies for nature conservation and management are also available.

We would be happy to inform you about all possibilities during a viewing.

The asking price is free of buyer’s costs, except notary fees.
This presentation is for informational purposes only. Drawings, dimensions, surface area and volume are indicative—no rights can be derived from them.

Features

Transfer of ownership
Asking Price
€ 2.950.000
Status
beschikbaar
Acceptance
in overleg
Construction
Kind of house
Woonboerderij
Building type
vrijstaande woning
Construction period
1923
Energy rating
G
Roof type
zadeldak
Bedrooms
3
Bathrooms
1
Surface Areas And Volume
Living Area
195 m2
Other indoor space
267 m2
Exterior space attached to the buildinge
7 m2
External storage space
208 m2
Volume in cubic meters
2000 m3
Plot Size
72410 m2
Facilities
Natuurlijke ventilatie
Aan bosrand
Aan rustige weg
Vrij uitzicht
Beschutte ligging
Open ligging
In bosrijke omgeving
Landelijk gelegen
Baerz & Co Property Brochure

Brochure

Videos

Floor Plans

Lunshof Makelaardij bv

Keizer Karelweg 342
1181 RJ Amstelveen

info@lunshof.nl
+31 20 345 8 345

www.lunshof.nl

Information / Viewing request

Stefano B. Djoemena profile image
Stefano B. Djoemena
Real Estate Agent

Buying a Luxury Property in Enschede

Enschede welcomes global citizens to a dynamic, cultured community. Distinct residential offerings blend privacy, design, and lifestyle services, supported by international connectivity and a creative local spirit.