Ons kantoor is lid van Baerz & Co luxury homes; een Nederlands platform dat exclusieve woningmakelaars met elkaar verbindt. Voor meer informatie over ons landelijke aanbod en dienstverlening kunt u contact opnemen met ons secretariaat.

DELFT
Venlokas 9 - 2614 SN
Netherlands

Jan Paul van Daal profile image
Jan Paul van Daal
Real estate agent
€995,000 k.k.
Living Area
176m2
Plot Size
254m2
Bedrooms
6

Description

This semi-detached house Delft offers a living area of 176 m² on a generous 254 m² plot, forming a considered retreat for families seeking both space and connection. The property unfolds along a well-regarded, child-friendly street, with landscaped front gardens and vibrant communal character. This modern home is defined by its sustainable design, featuring roof-mounted solar panels, district heating, and an energy class A rating.

The ground floor welcomes with a private driveway and a sunlit terrace that introduces an airy interior. A glass industrial door reveals a bright living room, seamlessly blending to an open kitchen with cooking island and integrated appliances. Sliding doors extend living to the terrace, while rear garden vistas create a gentle rhythm between inside and out. South-facing, this garden is complete with a generous terrace, greenhouse, wooden shed, and waterside jetty.

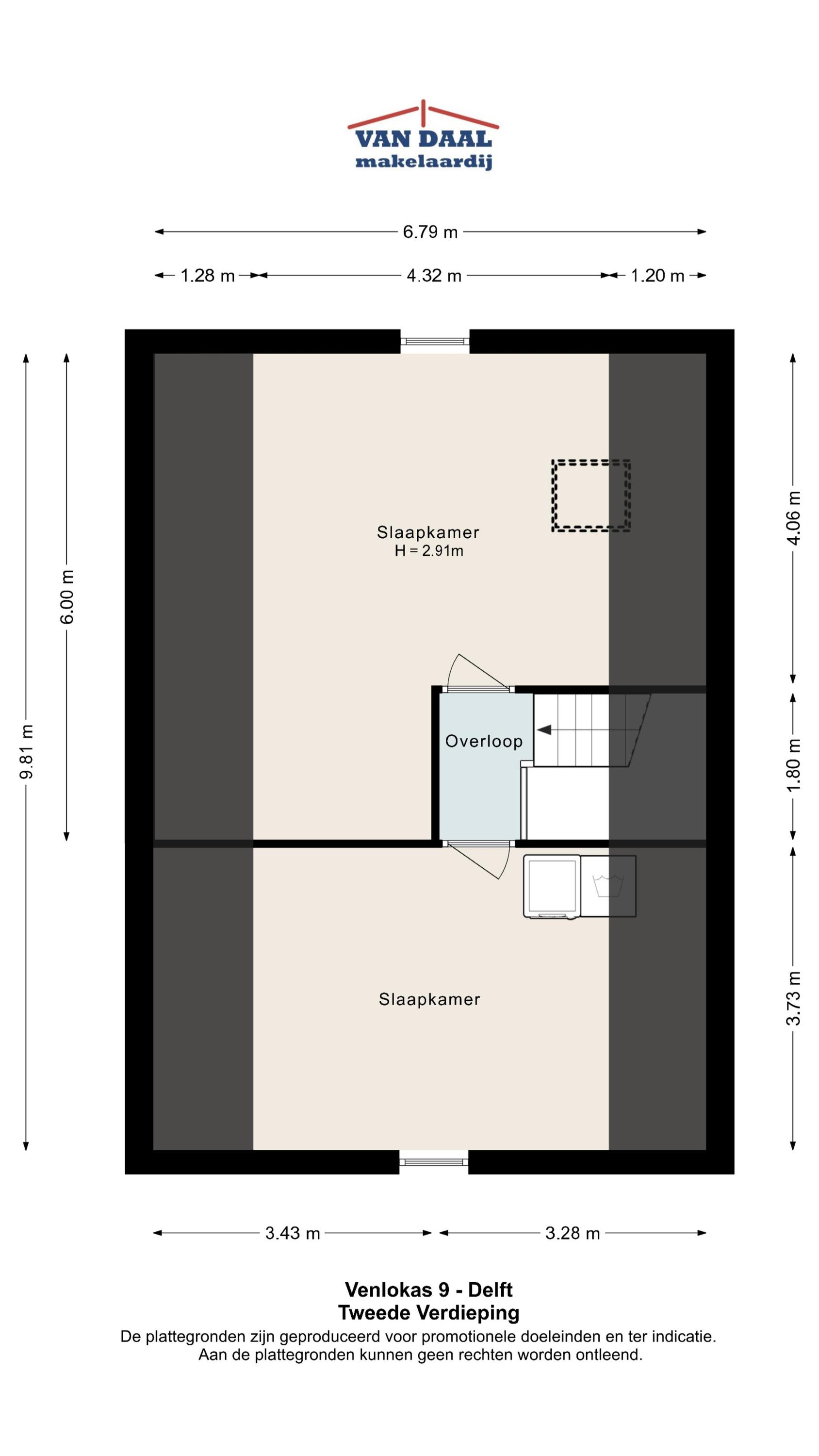
Rising through a luminous staircase, the first floor hosts four restful bedrooms, each benefiting from elevated doors and balanced light. A central bathroom presents a walk-in shower, bathtub, and double sink, with a separate second toilet for convenience. The second level offers flexibility, providing a large fifth bedroom and a versatile sixth room, presently arranged for laundry and storage, but prepared for a potential second bathroom. Plastic window frames with HR++ glazing complete the thoughtful approach to insulation, matched by balanced ventilation throughout.

Situated a short cycle from Delft city centre and the station, with schools and childcare nearby, this semi-detached house is both practical and quietly inspiring, serving the needs of a large household in a setting designed for modern family life.

Explore Delft with Baerz, Your Trusted Personal Property Finder & Advisor

Navigating Delft’s exclusive market demands both discretion and insight. Experienced advisors offer access to off-market gems, strategic negotiation, and deep knowledge of local cultural and regulatory nuances. Their guidance is indispensable for clients seeking rare inventory and seamless transactions.

Special Features

Solar panels

Features

Transfer of ownership
Asking Price
€ 995.000 k.k.
Status
beschikbaar
Acceptance
in overleg
Construction
Kind of house
Eengezinswoning
Building type
twee onder een kapwoning
Construction period
2019
Energy rating
A
Roof type
zadeldak
Bedrooms
6
Bathrooms
1
Surface Areas And Volume
Living Area
176 m2
Other indoor space
0 m2
External storage space
6 m2
Volume in cubic meters
630 m3
Plot Size
254 m2
Facilities
Zonnepanelen
Balansventilatie
Aan water
Aan rustige weg
In woonwijk
Baerz & Co Property Brochure

Brochure

Videos

Van Daal Makelaardij

Voldersgracht 33
2611 ED Delft

janpaul@vandaalmakelaardij.nl
+31 (0)15 - 212 73 00

www.vandaalmakelaardij.nl

Information / Viewing request

Jan Paul van Daal profile image
Jan Paul van Daal
Real estate agent