Ons kantoor is lid van Baerz & Co luxury homes; een Nederlands platform dat exclusieve woningmakelaars met elkaar verbindt. Voor meer informatie over ons landelijke aanbod en dienstverlening kunt u contact opnemen met ons secretariaat.

Grachtenpand for sale in AMSTERDAM

AMSTERDAM Singel 29 - 1012 VC The Netherlands


Sander Bovenkerk profile image
Sander Bovenkerk
Real Estate Agent
+31 6 55 74 61 72
info@heerenmakelaars.nl

Heeren Makelaars
Stadionweg 75
1077 SE Amsterdam
NETHERLANDS
+31 0204702255
www.heerenmakelaars.nl
info@heerenmakelaars.nl

Living area
342m2
Plot size
172m2
Bedrooms
7

Description

Singel 29, 1012 VC Amsterdam

Situated along the stately Singel, one of Amsterdam’s oldest and most iconic canals, lies this exceptional canal house: Singel 29. A residence where history and contemporary comfort blend seamlessly. Behind the monumental façade unfolds an entire property of approximately 342 m² of living space, spread across five floors, complemented by a detached garden house of approximately 41 m² divided over two levels.

The property has been meticulously renovated with great attention to detail and respect for its original architecture. Exposed beams, high ceilings, and large windows recall the building’s historic character, while bespoke craftsmanship, natural materials, and serene finishes create an atmosphere of modern luxury.

In short: a remarkable home in a truly unique location, right in the heart of Amsterdam.

Layout
This impressive canal house offers a generous amount of living space, spread over a lower ground floor, raised ground floor, and three upper levels, with a detached garden studio at the rear arranged over two storeys. The residence has been renovated to an exceptionally high standard, combining timeless elegance with refined craftsmanship. Throughout the home, original beam structures have been preserved, the walls are smoothly finished, the light herringbone oak flooring adds warmth, and bespoke cabinetry provides a sense of balance and harmony.

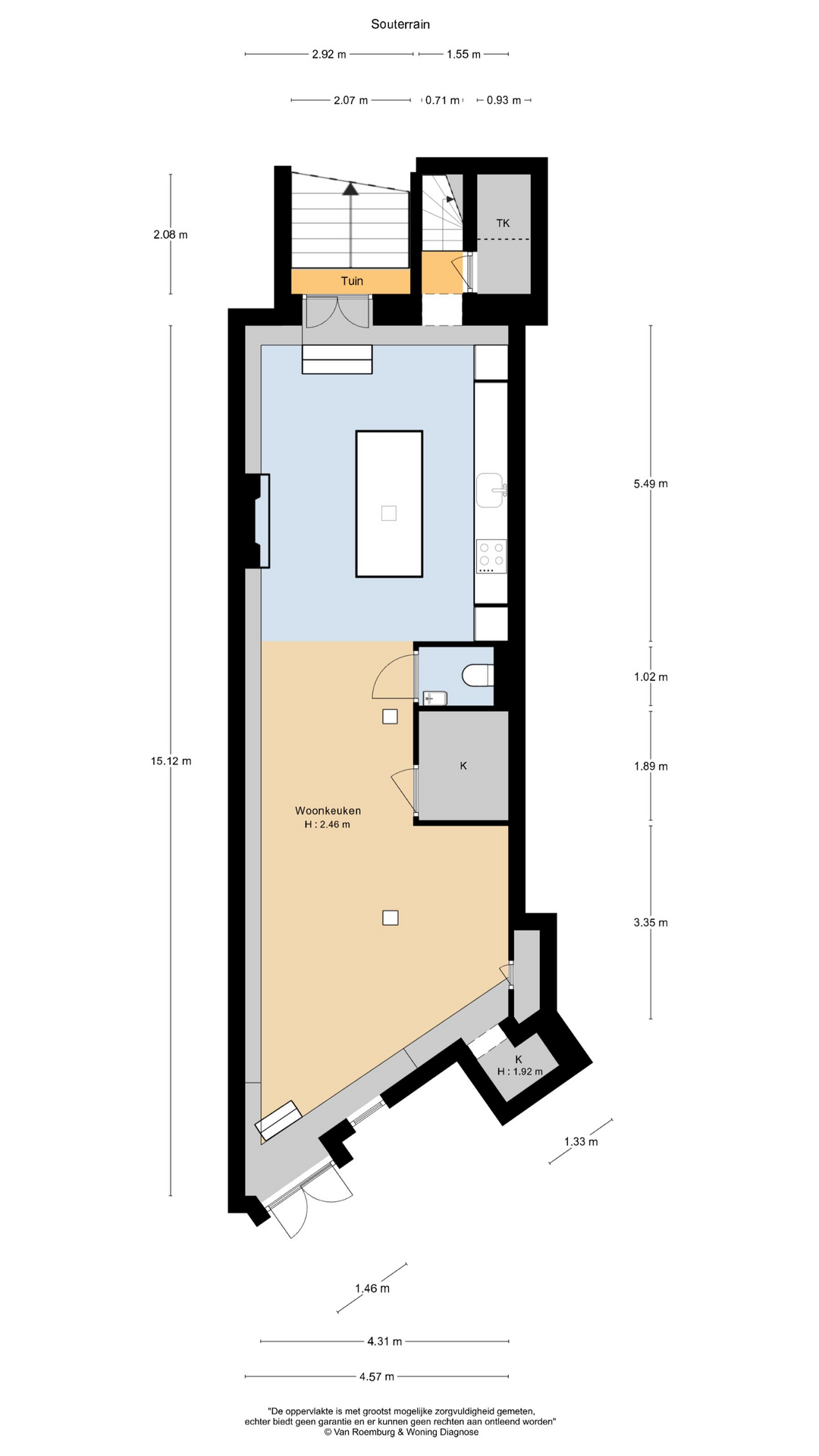
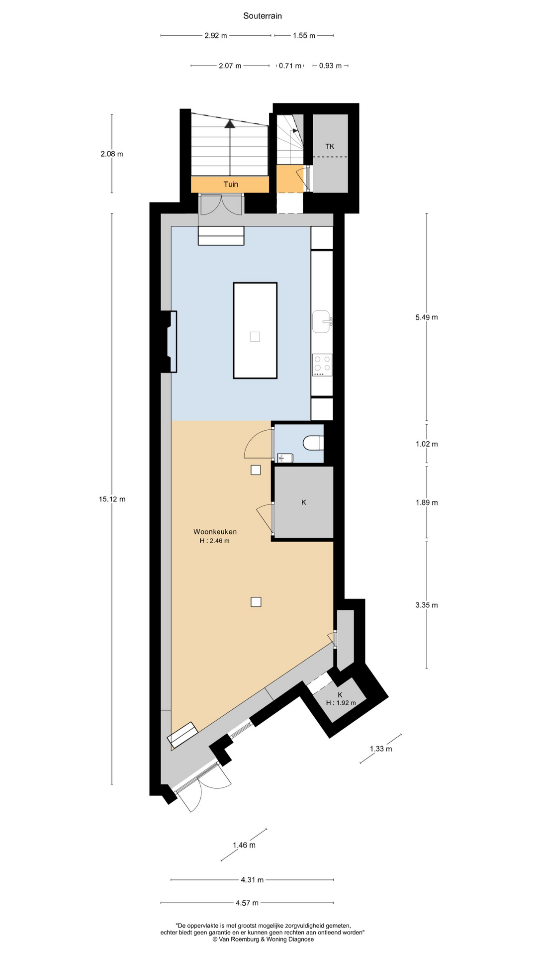
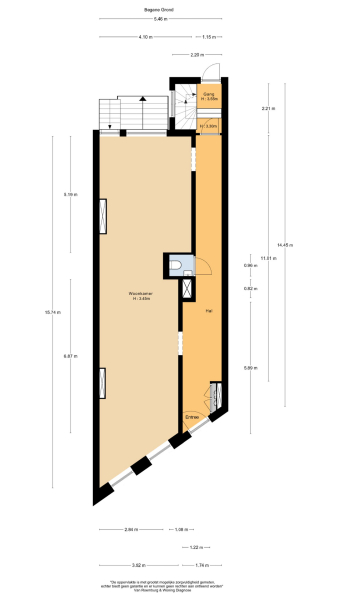
Lower ground floor
The lower ground floor hosts the spacious kitchen and dining area, where style, comfort and authenticity come together. The fireplace in this space adds warmth and atmosphere, creating an inviting focal point.

The custom-designed kitchen, executed in natural tones, features a large natural stone island with ample workspace and bar seating. Premium appliances include a Bora induction cooktop with integrated extraction, dishwasher, fridge-freezer, Quooker tap, Gaggenau oven and combination microwave. A custom-built wooden cabinet wall provides generous storage space.
At the front, the bright dining area offers a pleasant setting for long dinners and relaxed gatherings.

Both the front and rear of this level provide access to the outdoors, with double French doors at the back opening directly onto the garden.

This floor also includes a separate toilet, a practical storage area with washer and dryer connections, and the staircase to the raised ground floor. With a ceiling height of approximately 2.46 metres and its thoughtful layout, this level feels open, light, and inviting — an ideal living kitchen with character.

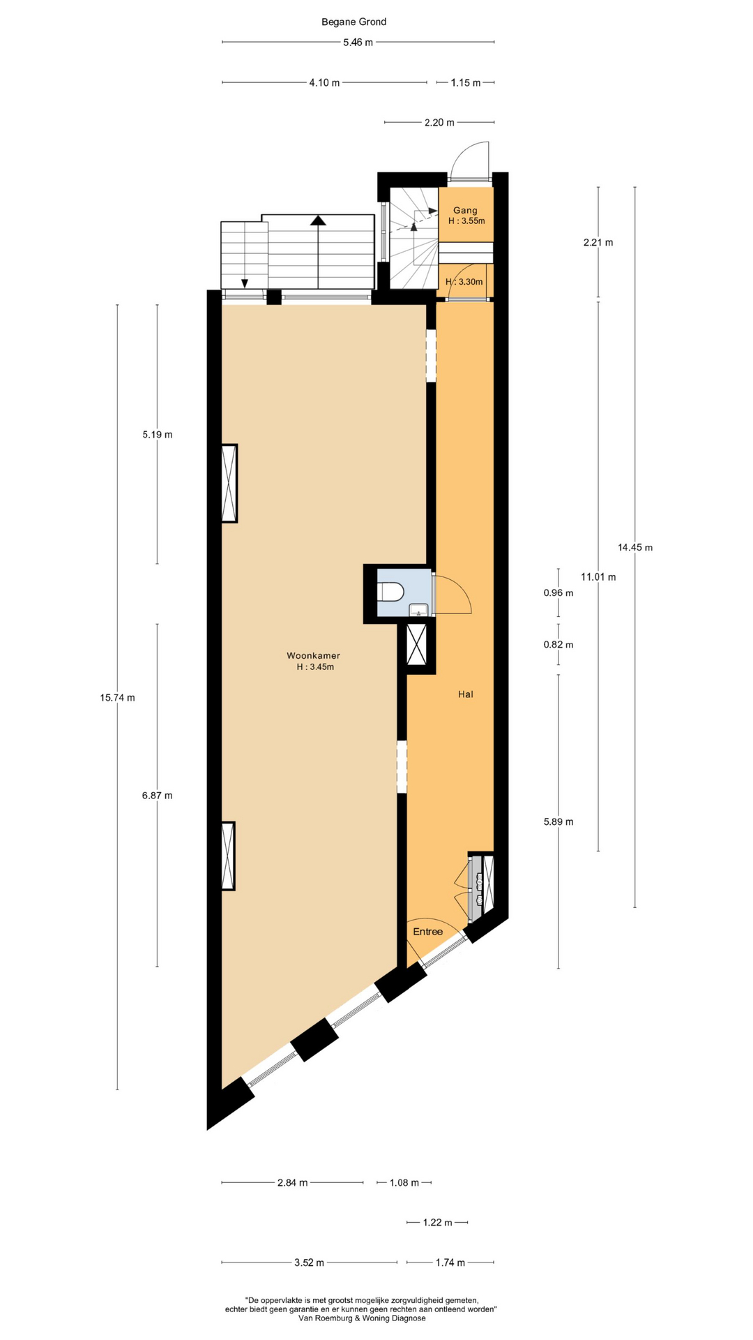
Ground floor
The raised ground floor exudes the classical elegance of Amsterdam’s canal belt, combined with a contemporary, tranquil atmosphere. A wide marble hallway, running the full length of the house, leads directly to the garden.

From the hall, you enter the living area. With a ceiling height of over 3.4 metres, original exposed beams, large windows and a beautiful view over the Singel, this is an impressive space where warmth and grandeur meet naturally. Two fireplaces on this floor add an extra sense of homeliness and refinement.

At the front is a comfortable sitting area overlooking the canal, with ample space for a large dining table. At the rear, a second lounge area connects directly to the terrace and garden. The high windows and French doors allow daylight to flood in, creating a bright, open and welcoming ambiance throughout.

This floor is not only a representative living space, but also a place that invites relaxation, connection, and enjoyment — with the charm of the canal in front and the calm of greenery behind.

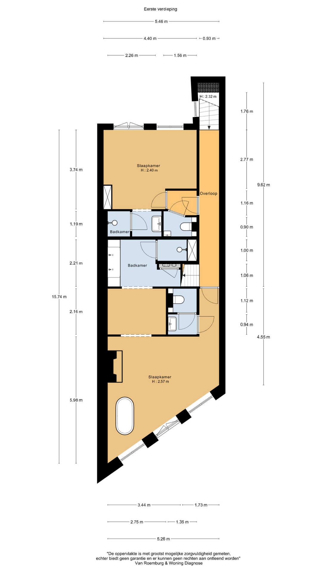
First floor
The first floor accommodates the primary bedroom at the front, offering canal views and a warm, natural, and serene ambiance thanks to its large windows. A freestanding bathtub by the window, French balcony and fireplace give the space a luxurious and intimate feel.

A walk-through dressing area with bespoke wardrobes connects the bedroom to the adjoining ensuite bathroom, where natural stone, wood, and soft lighting form a harmonious whole. The bathroom is fitted with a double vanity, walk-in shower, and high-end finishes in natural tones.

At the rear is a second bedroom, also with its own bathroom, overlooking the inner gardens — ideal as a guest room, children’s room, or home office.

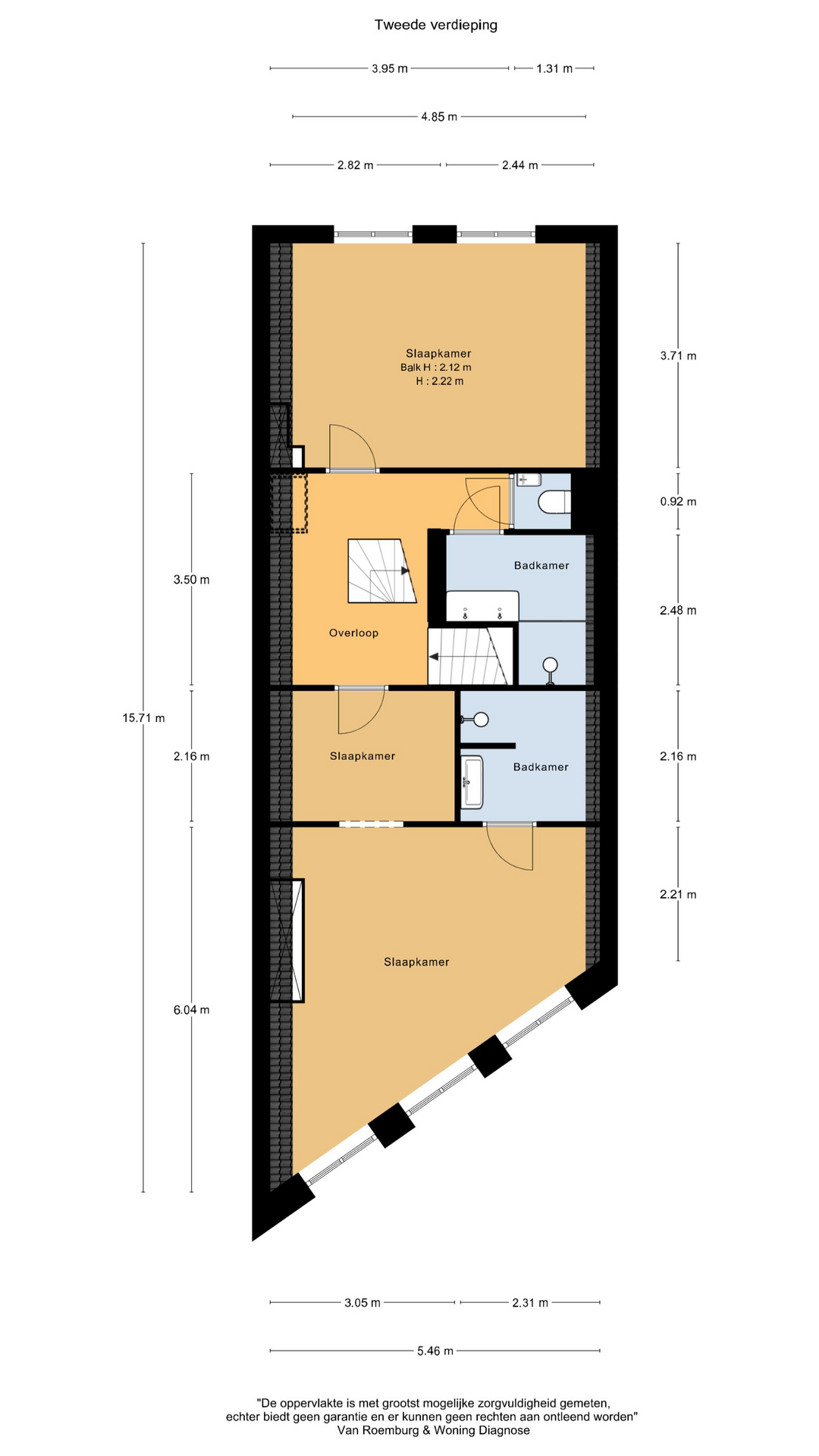
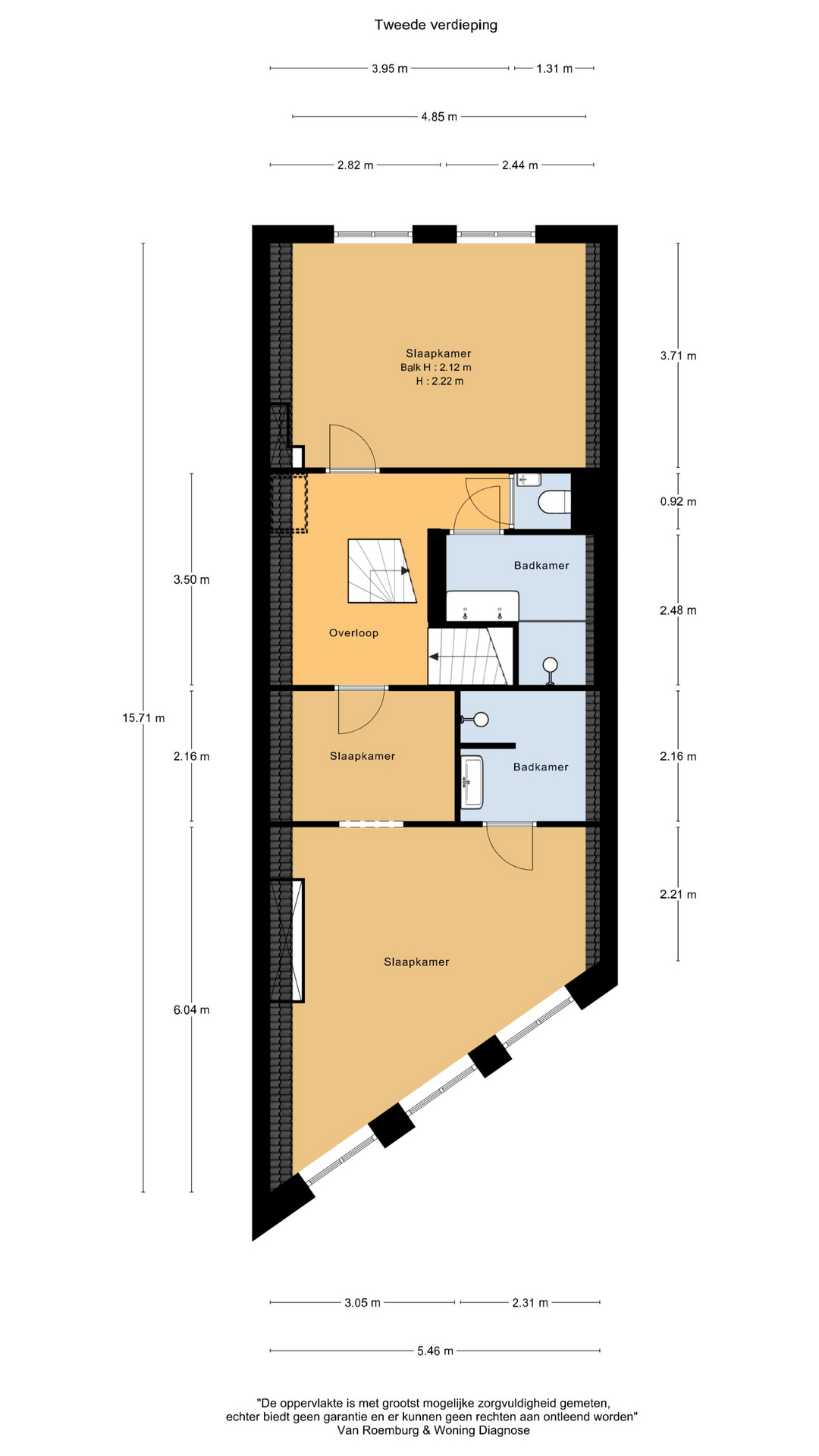
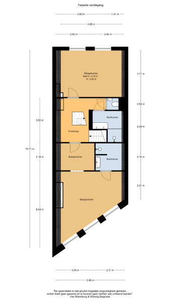
Second floor
The second floor is equally light and spacious, with a calming atmosphere that perfectly complements the rest of the house. This level comprises two bedrooms, two bathrooms, and a walk-in closet adjoining the front bedroom. On the landing, an open staircase leads to the upper floor and the rooftop terrace.

Third floor
The top floor is divided into two separate rooms. The room at the front is ideal as an additional bedroom or study. The rear room features a pantry with wine cooler and access to the rooftop terrace, where you can enjoy the sun and views over Amsterdam’s historic rooftops and the Dominicus Church — a perfect spot to unwind with a drink.

This floor also houses the technical room and provides connections for a washer and dryer.

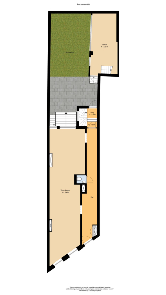
Garden and guesthouse
At the rear of the property lies a spacious and secluded city garden — a true oasis of calm in the heart of Amsterdam. The garden is beautifully landscaped with natural materials and lush greenery that reflect the serene character of the interior.

Adjacent to the garden is the detached studio, a self-contained guesthouse designed with the same attention to detail and fully in harmony with the style of the main house.

The studio extends over two levels:
- On the ground floor, an open space with high windows and a warm wooden floor — ideal as a workspace, guest suite, or creative studio.
- On the upper floor, a bright bedroom with exposed beams, large windows and a private bathroom with shower, sink and toilet.

Refined finishes, abundant natural light and a calm atmosphere make this an inspiring and versatile space — equally suitable as a guest residence, home office, or atelier.

Location and surroundings
Located on the stately Singel, one of Amsterdam’s oldest canals and part of the UNESCO World Heritage-listed Canal Belt, this property enjoys a truly central yet peaceful setting. Here, the serenity of the water meets the vibrancy of the historic city centre.

From the house, you can walk within minutes to the Dam Square, the Royal Palace, or the Nine Streets with their boutique shops, cafés and restaurants. Amsterdam Central Station is also just a short stroll away, making this location ideal for those who commute or travel internationally.

The Singel itself breathes history: once the medieval city moat marking Amsterdam’s boundary, it is now one of the city’s most desirable canals, lined with monumental buildings, leafy bridges, and an understated vibrancy. The surrounding area offers a rich variety of culture and gastronomy, from the Amsterdam Museum to fine dining restaurants and charming waterside cafés.

In short: living on the Singel means living in the heart of the capital — surrounded by history, elegance, and urban vitality.

Accessibility
Amsterdam Central Station is only a few minutes’ walk away, offering direct national and international train connections. The North/South metro line and several tram and bus routes are also within easy reach, providing quick access to all parts of the city and beyond.

By car, the A10 ring road can be reached in about 15 minutes via the Prins Hendrikkade and Nieuwezijds Voorburgwal. Parking is available in the immediate area, both on the street (paid) and in nearby parking garages. Residents may apply for a parking permit, though waiting times may apply.

Details
- Living area approx. 342 m² (measured in accordance with NEN2580);
- Property divided over five floors;
- New foundation;
- Situated on freehold land (no ground lease);
- Detached guesthouse/studio legally registered as residential space;
- Listed national monument;
- Located within a protected cityscape;
- UNESCO World Heritage Site;
- High-quality finishes with spacious, light-filled rooms;
- Completion in consultation.

We have gathered this information with the greatest of possible care. However, we will not accept any liability for any incompleteness, inaccuracy or any other matter nor for the consequences of such. All measurements and surfaces stated are indicative. The purchaser has a duty to investigate any matter that may be of importance to him or her. The estate agent is the adviser to the seller with regard to this residence. We advise you to engage an expert (NVM registered) estate agent who will guide you through the purchasing process. Should you have any specific desires with regard to the residence, we advise you to make these known as soon as possible to your purchasing estate agent and have an independent investigation carried out into such matters. If you do not engage an expert, you will be deemed as considering yourself to be sufficiently expert to be able to oversee all matters that could be important. The NVM conditions apply.

Features

Transfer of ownership
price
€ 4.100.000 k.k.
Status
beschikbaar
Acceptance
in overleg
Construction
Kind of house
Grachtenpand
Building type
tussenwoning
Construction period
1752
Energy rating
A_PP
Roof type
zadeldak
Bedrooms
7
Bathrooms
5
Surface Areas And Volume
Living area
342 m2
Other indoor space
0 m2
Exterior space attached to the building
8 m2
Volume in cubic meters
1294 m3
Plot size
172 m2
facilities
Tv kabel
Frans balkon
Dakraam
Natuurlijke ventilatie
Aan water
In centrum
Vrij uitzicht
Baerz & Co Property Brochure

Brochure

Information / Viewing request

Videos

Video Singel 29

Photos

Floor Plans