Baerz & Co is een landelijk samenwerkingsverband van zorgvuldig geselecteerde boutique luxury makelaars. Samen vormen wij één netwerk, met één gedeeld aanbod. De woningen die u op onze website ziet, zijn afkomstig van alle aangesloten kantoren binnen Baerz & Co. Daardoor is niet ieder object rechtstreeks door ons kantoor in verkoop, maar door een gespecialiseerde collega binnen ons netwerk. Heeft u een woning gevonden die u aanspreekt en wilt u meer informatie? Dan brengen wij u graag persoonlijk in contact met de betreffende verkoopmakelaar, zodat u direct en zorgvuldig wordt begeleid.

AMSTERDAM
Bundlaan 256 - 1031 KA
Netherlands

Stefano B. Djoemena profile image
Stefano B. Djoemena
Real Estate Agent
€1,000,000 k.k.
Living Area
137m2
Plot Size
N/A
Bedrooms
3

Description

Bundlaan 256, 1031 KA Amsterdam

This turn-key apartment of approx. 137 m² is located in a stylish complex in a prime location in Amsterdam. The property includes a private parking space, three bedrooms, two balconies, and a luxurious open-plan kitchen. In addition, the home is exceptionally energy-efficient with an A+++ energy label.

Location & Accessibility:
Along the IJ River, on the former Shell grounds in Amsterdam-Noord, a new urban district has emerged with a character of its own. Where industry once dominated, you will now find a vibrant and green residential area featuring contemporary architecture, wide pedestrian paths, and plenty of water. Here, living, working, and leisure naturally come together.

The neighbourhood has been designed with a thoughtful urban vision, where modern buildings and generous green spaces reinforce each other. Low-traffic streets, inner gardens, and squares create tranquillity and openness, while Amsterdam’s city centre is just a short ferry ride away. In the immediate vicinity, you will find various supermarkets, the market on Van der Pekstraat, and numerous restaurants and cafés, such as The Coffee Virus, The Butcher Social Club, the EYE Film Museum, and the Tolhuistuin. There is always something to do, yet it is equally easy to retreat into the calm of the green surroundings. The residential area along the IJ is also very well suited to couples and families with children. Several childcare centres, a wide selection of primary schools, and various playgrounds are all within walking distance.

As a result, the IJ waterfront has become the modern face of Amsterdam-Noord: spacious, green, and full of life: a place where urban energy and tranquillity blend effortlessly. Living by the IJ means enjoying peace, space, and a direct connection to the city. Within minutes, you can reach ferry 907, which takes you to Amsterdam Central Station free of charge, day and night. The North/South metro line is also close by, connecting you quickly to the city centre, the Zuidas business district, or Station Zuid. By car, you can easily reach the A10 ring road via Noorderpark and Buikslotermeer, while the IJ Tunnel brings you directly to Amsterdam’s city centre within minutes.

'The Grid':
The apartment complex 'The Grid' consists of 68 luxurious residences. Completed in 2021, the building is characterised by its stepped façade and thoughtful design. The spacious lobby features an extra-high ceiling and forms the heart of the building. Situated directly along the street, with plenty of glass and views of the internal garden, it is a wonderful meeting place. The building also includes a shared indoor bicycle storage area and a parcel delivery room.

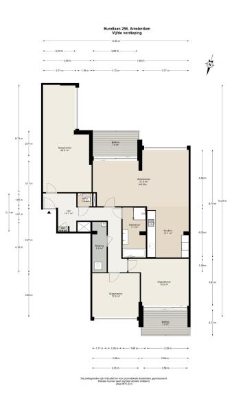
Layout:
Through the well-maintained entrance of the complex, you reach the fifth floor by lift or stairs. The hallway includes a separate toilet with washbasin and a spacious storage room containing the heat pump and the necessary connections for a washing machine and dryer. From here you have access to all rooms. The generous primary bedroom is located at the front. Impressive windows allow for an abundance of natural light. Adjacent is the spacious living room. A large sliding door provides access to the south-facing terrace. The open-plan kitchen is fully equipped with all modern built-in appliances, including an induction cooktop, dishwasher, fridge-freezer, and combination oven. There is more than enough storage space.

Centrally located is the bathroom, equipped with a double washbasin with cabinet, bathtub, and walk-in shower. At the rear of the home are two well-proportioned bedrooms. A second balcony with sliding doors is also situated at the rear. The entire apartment features a beautiful floor finish. In the basement level, you will find a storage unit of over 7m² and a parking space. The asking price for the parking space is €50,000 (buyer’s costs).

In summary: energy-efficient and turn-key living in a prime Amsterdam location!

Particulars:

- Apartment of 137.40 m² (measured in accordance with NEN2580 standards)
- Modern and high-quality complex 'The Grid', completed in 2021
- Bright and comfortable apartment with three bedrooms
- Energy label A+++
- Fully insulated and equipped with underfloor heating
- Heat pump installed
- Active and professionally managed Homeowners’ Association, managed by Sturm and de Neeve B.V. Amsterdam
- Parking space for sale: €50,000
- Monthly contribution is €270.02 for the apartment, €47.75 for the parking and €1.88 for the storage room
- Leasehold bought off
- Transfer in consultation

This information has been compiled with the utmost care. However, no liability is accepted for any inaccuracy, incompleteness, or consequences thereof. All measurements and surface areas are indicative. The buyer has their own duty to investigate all matters that may be of importance to them. Regarding this property, the estate agent acts as the seller’s representative. We recommend engaging a qualified (NVM) estate agent to assist you with the purchase process. If you have specific requirements regarding the property, please make these known to your purchasing agent in good time and have them independently verified. If you choose not to appoint a professional representative, you are deemed sufficiently knowledgeable by law to assess all relevant matters yourself. The NVM terms and conditions apply.

Features

Transfer of ownership
Asking Price
€ 1.000.000 k.k.
Status
verkocht onder voorbehoud
Acceptance
direct
Construction
Kind of house
Tussenverdieping
Building type
appartement
Construction period
2021
Energy rating
A+++
Roof type
plat dak
Bedrooms
3
Bathrooms
1
Surface Areas And Volume
Living Area
137 m2
Other indoor space
0 m2
Exterior space attached to the buildinge
16 m2
External storage space
7 m2
Volume in cubic meters
443 m3
Facilities
Lift
Schuifpui
Balansventilatie
In woonwijk
Baerz & Co Property Brochure

Brochure

Videos

Floor Plans

Lunshof Makelaardij bv

Keizer Karelweg 342
1181 RJ Amstelveen

info@lunshof.nl
+31 20 345 8 345

www.lunshof.nl

Information / Viewing request

Stefano B. Djoemena profile image
Stefano B. Djoemena
Real Estate Agent

Buying a Luxury Property in Amsterdam

Amsterdam offers a cosmopolitan lifestyle defined by heritage, connectivity, and discreet luxury. Residents benefit from a robust international community, curated services, and vibrant culture. The city’s enduring appeal lies in its blend of history, sophistication, and progressive spirit.